Maison de caractere

279.000€ PEB D
  • icone lit 2 chambre(s)
  • icone douche 2 salle(s) de bain(s)
  • icone équerre 192 m² hab.
  • icone localisation DINANT
Demande d'informations

Caractéristiques du bien

Général

  • Référence 21949
  • Disponibilité A l'acte
  • Catégorie MAISON DE CARACTERE
  • Année de construction 1732
  • Meublé Non
  • Revenu cadastral 573€
  • État du bâtiment Bon
  • Étage 3
  • Orientation Sud-est

Interieur

  • Chambre(s) 2
  • Salle(s) de bain 2
  • WC(s) 3
  • Grenier Non
  • Chauffage C.C. au gaz
  • Cuisine Entièrement équipée
  • Vitrage Double
  • Avec bureau Non
  • Ascenseur Non

Surfaces

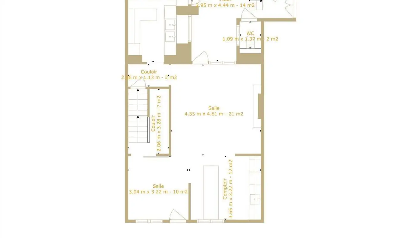
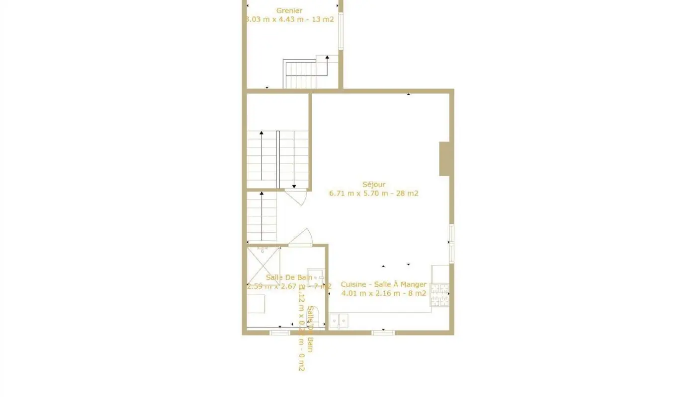
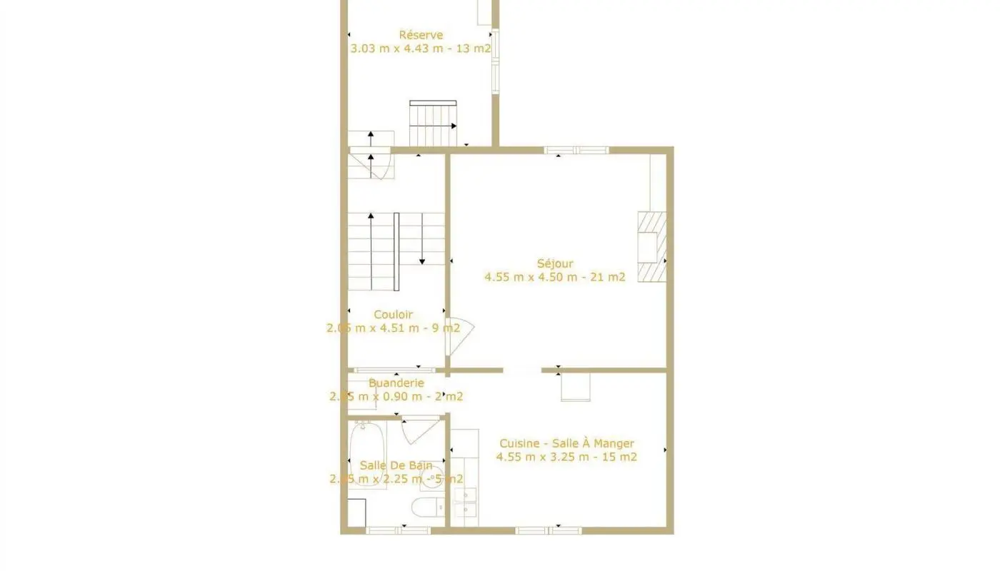
  • Surface habitable 192 m²
  • Surface du magasin 59 m²
  • Surface de la terrasse 40 m²
  • Surface du terrain 108 m²

Énergie

  • Code unique 20240720004587
  • Energie spécifique (kWh/m²/an) 322
  • Energie totale (kWh/an) 16889
  • Emission CO2 (kg CO2/m²/an) 59
  • Label peb D
A
B
C
D D
E
F
G

Autres caractéristiques

  • Terrasse Oui
  • Cave(s) Oui
  • Jardin Non

Description

BOUVIGNES SUR MEUSE, Au pied des Ruines médiévales du Château fort de Crèvecœur venez découvrir cette coquette demeure ! Commerce et logement dans un cadre unique ! C’est au cœur d’un cadre enchanteur, sur une place calme et pleine de charme, que se dresse cet immeuble classé à l’histoire forte et au potentiel certain. Rénové avec soin en 2009, il a su préserver toute l’authenticité de ses origines, notamment grâce à son splendide parquet d’époque datant de 1732, ses volumes chaleureux et ses matériaux nobles. Au rez-de-chaussée, vous découvrez un restaurant convivial avec cuisine en inox entièrement équipée (incluse dans la vente) et une petite cour intérieure. Les trois niveaux supérieurs accueillent un logement privé au charme indéniable, parfait pour allier vie professionnelle et cadre de vie unique. Emplacement rare, au pied d'un site historique, idéal pour les amoureux de patrimoine ou les projets de tourisme ou d’Horeca. COUP DE COEUR - Un bien de caractère à découvrir sans tarder ! ! ! 082/22.40.92 Offre soumise à l'accord des propriétaires.
Prix de vente 279.000€
Agence de Dinant 082 22 40 92 Nous contacter

Demande d'infos envoyée avec succès.

Retour

Demande d'infos pour ce bien

Rue Grande 2 - 5500 DINANT
082 22 40 92 - dinant@century21immodemeuse.be
IPI 501.475 - TVA : 875.888.224

Ce site utilise des cookies

Nous utilisons des cookies pour assurer le bon fonctionnement du site. Vous pouvez consulter nos mentions légales et notre politique de confidentialité pour plus d'informations.

Accepter les cookiesParamétrer ou refuser les cookies
Plus d'informations sur l'utilisation de vos données personnelles