Century 21 alliance-demeuse vous présente

159.000€ PEB F
  • icone lit 2 chambre(s)
  • icone douche 1 salle(s) de bain(s)
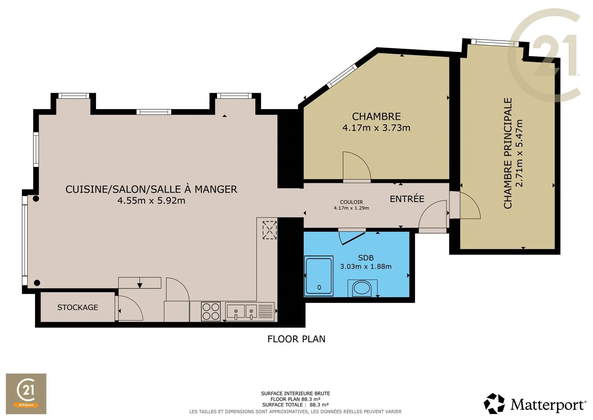
  • icone équerre 88 m² hab.
  • icone localisation AUVELAIS
Demande d'informations

Caractéristiques du bien

Général

  • Référence 24882
  • Disponibilité A l'acte
  • Catégorie CENTURY 21 Alliance-Demeuse vous présente
  • Année de construction 1980
  • Meublé Non
  • Revenu cadastral 745€
  • Précompte immobilier 875€
  • État du bâtiment Excellent
  • Orientation Sud

Interieur

  • Chambre(s) 2
  • Salle(s) de bain 1
  • WC(s) 1
  • Grenier Non
  • Chauffage Electrique direct
  • Cuisine semi équipée
  • Vitrage Double
  • Avec bureau Non
  • Ascenseur Oui

Surfaces

  • Surface brut 884 m²
  • Surface habitable 88 m²
  • Surface du living 27 m²
  • Surface du terrain 2543 m²

Énergie

  • Code unique 20231130018285
  • Energie spécifique (kWh/m²/an) 479
  • Energie totale (kWh/an) 47199
  • Emission CO2 (kg CO2/m²/an) 137
  • Label peb F
A
B
C
D
E
F F
G

Autres caractéristiques

  • Terrasse Non
  • Cave(s) Oui
  • Jardin Non

Description

Century 21 Alliance - Demeuse vous présente ce bel appartement lumineux situé à Auvelais, offrant un cadre de vie moderne et confortable d’une superficie de 88 m². Le bien se compose d’un agréable espace de vie réunissant la cuisine, le salon et la salle à manger, ainsi que d’un espace de rangement pratique. Il dispose également de deux chambres spacieuses et d’une salle de douche fonctionnelle. Idéalement implanté à Auvelais, l’appartement bénéficie d’un emplacement stratégique dans un environnement calme, tout en restant proche des grands axes et des commodités locales. Le quartier combine harmonieusement tranquillité résidentielle et accès aisé aux services essentiels. Charges de copropriété : 81 euros/mois hors eau et électricité. Electricité conforme jusque 2038 ! Intéressé(e) ? Informations et demande de visite au 071/77.18.21 ou par mail à l'adresse sambreville@century21immodemeuse.be CENTURY 21 Alliance-Demeuse
Prix de vente 159.000€
Agence de Sambreville 071 77 18 21 Nous contacter

Demande d'infos envoyée avec succès.

Retour

Demande d'infos pour ce bien

Rue du Centre 24 - 5060 SAMBREVILLE
071 77 18 21 - sambreville@century21immodemeuse.be
IPI 501.475 - TVA : 875.888.224

Ce site utilise des cookies

Nous utilisons des cookies pour assurer le bon fonctionnement du site. Vous pouvez consulter nos mentions légales et notre politique de confidentialité pour plus d'informations.

Accepter les cookiesParamétrer ou refuser les cookies
Plus d'informations sur l'utilisation de vos données personnelles