Dernier lot disponible – duplex peb a avec grande terrasse !

350.000€ PEB A-
  • icone lit 3 chambre(s)
  • icone douche 1 salle(s) de bain(s)
  • icone équerre 143 m² hab.
  • icone localisation ASSESSE
Demande d'informations

Caractéristiques du bien

Général

  • Référence 23766
  • Disponibilité A l'acte
  • Catégorie DERNIER LOT DISPONIBLE – Duplex PEB A avec grande terrasse !
  • Meublé Non
  • État du bâtiment Excellent
  • Étage 1

Interieur

  • Chambre(s) 3
  • Salle(s) de bain 1
  • Salle(s) de douche 1
  • WC(s) 2
  • Grenier Non
  • Chauffage Pompe à chaleur
  • Cuisine Equipée
  • Vitrage Triple
  • Avec bureau Non
  • Ascenseur Non

Surfaces

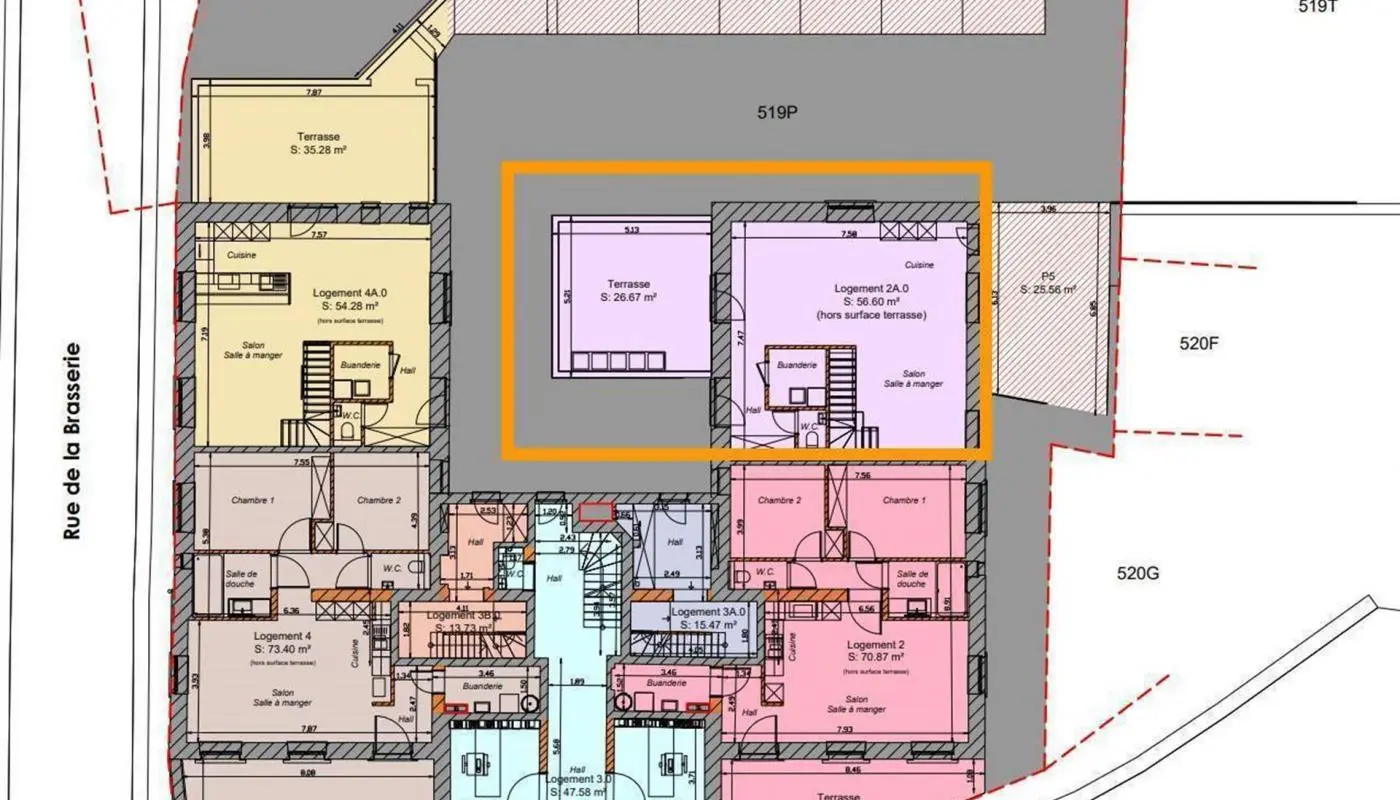
  • Surface habitable 143 m²
  • Surface du living 57 m²
  • Surface de la terrasse 26 m²

Énergie

  • Energie spécifique (kWh/m²/an) 84
  • Energie totale (kWh/an) 12096
  • Emission CO2 (kg CO2/m²/an) 22
  • Label peb A
A A
B
C
D
E
F
G

Autres caractéristiques

  • Terrasse Oui
  • Cave(s) Oui
  • Jardin Non

Description

ASSESSE – DERNIER LOT DISPONIBLE – Maison médicale / professions libérales – TVA déductible Dernier lot disponible au sein de l’ancienne maison communale d'Assesse, un emplacement stratégique à proximité de la N4 et de l’E411, parfaitement adapté à l’installation d’une maison médicale, d’un cabinet pluridisciplinaire ou de professions libérales (médecins, kinés, dentistes, psychologues, avocats, architectes, etc.). Le bien se compose de : 3 espaces distincts pouvant être aménagés en cabinets, salles de consultation ou bureaux Espace lumineux idéal pour accueil et salle d’attente Cuisine équipée spacieuse, adaptée à un usage professionnel (espace détente / personnel) 1 salle de douche 1 salle de bain avec douche Grande terrasse privative de 26 m² 1 cave
Prix de vente 350.000€
Agence de Namur - Erpent 081 31 15 11 Nous contacter

Demande d'infos envoyée avec succès.

Retour

Demande d'infos pour ce bien

Chaussée de Marche 588 - 5101 ERPENT, NAMUR
081 31 15 11 - namur@century21immodemeuse.be
IPI 501.475 - TVA : 831.406.695

Ce site utilise des cookies

Nous utilisons des cookies pour assurer le bon fonctionnement du site. Vous pouvez consulter nos mentions légales et notre politique de confidentialité pour plus d'informations.

Accepter les cookiesParamétrer ou refuser les cookies
Plus d'informations sur l'utilisation de vos données personnelles