Century 21 alliance demeuse vous présente

265.000€ PEB A-
  • icone lit 3 chambre(s)
  • icone douche 1 salle(s) de bain(s)
  • icone équerre 120 m² hab.
  • icone localisation Tamines
Demande d'informations

Caractéristiques du bien

Général

  • Référence 25315
  • Disponibilité A l'acte
  • Catégorie CENTURY 21 Alliance Demeuse vous présente
  • Année de construction 2013
  • Meublé Non
  • Revenu cadastral 1139€
  • État du bâtiment Excellent
  • Étage 3/3

Interieur

  • Chambre(s) 3
  • Salle(s) de bain 1
  • WC(s) 2
  • Grenier Non
  • Chauffage C.C. au gaz
  • Cuisine Entièrement équipée
  • Vitrage Double
  • Avec bureau Non
  • Ascenseur Oui

Surfaces

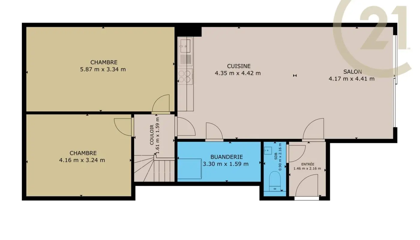
  • Surface habitable 120 m²
  • Surface du living 40 m²
  • Surface de la terrasse 10 m²

Énergie

  • Code unique 20250921012855
  • Energie spécifique (kWh/m²/an) 71
  • Energie totale (kWh/an) 8370
  • Emission CO2 (kg CO2/m²/an) 14
  • Label peb A
A A
B
C
D
E
F
G

Autres caractéristiques

  • Terrasse Oui
  • Cave(s) Non
  • Jardin Non
  • Parking1

Description

Century 21 Alliance Demeuse vous présente ce magnifique duplex de 120 m², idéalement situé à Tamines. Moderne et particulièrement lumineux, ce bien offre un cadre de vie confortable au sein d’une copropriété avec ascenseur. Il se compose d’un spacieux séjour de 40 m², baigné de lumière et ouvert sur une cuisine équipée, idéal pour des moments de convivialité. L’espace nuit comprend trois belles chambres, parfaitement adaptées à une famille ou à l’aménagement d’un bureau. Le bien dispose également d’une terrasse privative au calme, d’une buanderie, d’un WC séparé, de volets électriques sur chaque Velux ainsi que d’une place de parking privative et sécurisée. Sur le plan technique, tout a été pensé pour votre confort : PEB A, chauffage central au gaz et électricité conforme. Informations complémentaires : charges de copropriété de 198 €/mois et fonds de réserve de 3.100 €, inclus dans le prix de vente. Ce duplex constitue une opportunité idéale pour une famille ou pour toute personne à la recherche d’un bien clé en main, alliant modernité, confort et excellente performance énergétique, dans un cadre de vie agréable. Intéressé(e) ? Informations et demande de visite au 071/77.18.21 ou par mail à l'adresse sambreville@century21immodemeuse.be CENTURY 21 Alliance-Demeuse
Prix de vente 265.000€
Agence de Sambreville 071 77 18 21 Nous contacter

Demande d'infos envoyée avec succès.

Retour

Demande d'infos pour ce bien

Rue du Centre 24 - 5060 SAMBREVILLE
071 77 18 21 - sambreville@century21immodemeuse.be
IPI 501.475 - TVA : 875.888.224

Ce site utilise des cookies

Nous utilisons des cookies pour assurer le bon fonctionnement du site. Vous pouvez consulter nos mentions légales et notre politique de confidentialité pour plus d'informations.

Accepter les cookiesParamétrer ou refuser les cookies
Plus d'informations sur l'utilisation de vos données personnelles