A deux pas des axes routiers et proche de toutes les commodités: belle maison en pierres avec terras

160.000€ PEB F
  • icone lit 3 chambre(s)
  • icone douche 1 salle(s) de bain(s)
  • icone équerre 116 m² hab.
  • icone localisation SPONTIN
Demande d'informations

Caractéristiques du bien

Général

  • Référence 24978
  • Disponibilité A l'acte
  • Catégorie A deux pas des axes routiers et proche de toutes les commodités: Belle maison en pierres avec terras
  • Année de construction 1961
  • Meublé Non
  • Revenu cadastral 602€
  • État du bâtiment A rénover
  • Étage 3/3
  • Orientation Nord

Interieur

  • Chambre(s) 3
  • Salle(s) de bain 1
  • WC(s) 1
  • Grenier Oui
  • Chauffage C.C. au mazout
  • Cuisine Néant
  • Vitrage Double
  • Avec bureau Non
  • Ascenseur Non

Surfaces

  • Surface brut 50 m²
  • Surface habitable 116 m²
  • Surface du living 27 m²
  • Surface du terrain 232 m²

Énergie

  • Code unique 20260402010835
  • Energie spécifique (kWh/m²/an) 448
  • Energie totale (kWh/an) 52137
  • Emission CO2 (kg CO2/m²/an) 113
  • Label peb F
A
B
C
D
E
F F
G

Autres caractéristiques

  • Terrasse Oui
  • Cave(s) Oui
  • Jardin Non

Description

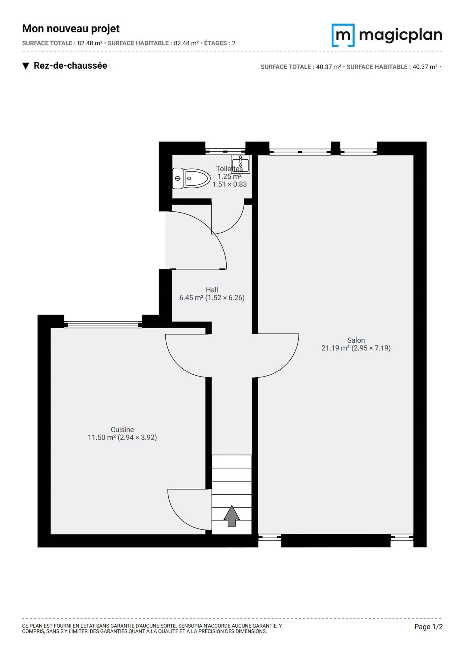
Située à Spontin, cette maison à rénover offre un beau potentiel pour les amateurs de projets personnalisés ou les investisseurs. Elle se compose d’un hall d’entrée, d’un WC, d’une cuisine et d’un living lumineux. À l’étage, vous trouverez un hall de nuit desservant trois chambres ainsi qu’une salle de bain. Un grenier de rangement complète l’espace intérieur, tandis que des caves offrent un espace de stockage supplémentaire. À l’extérieur, vous pourrez profiter d’une belle terrasse bien orientée ainsi que d’un carport. La maison nécessite peu d’entretien, ce qui en fait une opportunité intéressante pour un premier achat ou un projet de rénovation. Les images d’aménagements présentées ont été générées à l’aide de l’intelligence artificielle afin de vous aider à vous projeter. Prix : 160.000 € (sous réserve de l’acceptation des vendeurs).
Prix de vente 160.000€
Agence de Ciney 083 21 21 61 Nous contacter

Demande d'infos envoyée avec succès.

Retour

Demande d'infos pour ce bien

Rue du Commerce 1 - 5590 CINEY
083 21 21 61 - info@century21immodemeuse.be
IPI 501.475 - TVA : 875.888.224

Ce site utilise des cookies

Nous utilisons des cookies pour assurer le bon fonctionnement du site. Vous pouvez consulter nos mentions légales et notre politique de confidentialité pour plus d'informations.

Accepter les cookiesParamétrer ou refuser les cookies
Plus d'informations sur l'utilisation de vos données personnelles