Ensemble immobilier compose de deux maisons distinctes

315.000€ PEB F
  • icone lit 6 chambre(s)
  • icone douche 3 salle(s) de bain(s)
  • icone équerre 304 m² hab.
  • icone localisation DINANT
Demande d'informations

Caractéristiques du bien

Général

  • Référence 24077
  • Disponibilité A convenir
  • Catégorie ENSEMBLE IMMOBILIER COMPOSE DE DEUX MAISONS DISTINCTES
  • Année de construction 1875
  • Meublé Non
  • Revenu cadastral 856€
  • État du bâtiment A rafraîchir
  • Étage 3
  • Orientation Sud-ouest

Interieur

  • Chambre(s) 6
  • Salle(s) de bain 3
  • WC(s) 3
  • Grenier Oui
  • Chauffage Chauffage de ville
  • Cuisine Equipement de base
  • Vitrage Double
  • Avec bureau Non
  • Ascenseur Non

Surfaces

  • Surface brut 128 m²
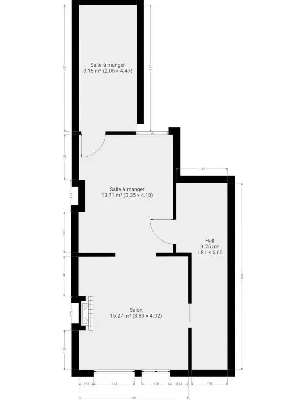
  • Surface habitable 304 m²
  • Surface du living 60 m²
  • Surface de la terrasse 20 m²
  • Surface du jardin 500 m²
  • Surface du terrain 628 m²

Énergie

  • Code unique 20251004008451
  • Energie spécifique (kWh/m²/an) 503
  • Energie totale (kWh/an) 95575
  • Emission CO2 (kg CO2/m²/an) 92
  • Label peb F
A
B
C
D
E
F F
G

Autres caractéristiques

  • Terrasse Oui
  • Cave(s) Oui
  • Jardin Oui

Description

Situé au coeur de Dinant, dans un quartier calme et proche des commodités, cet ensemble immobilier de caractère, composé de deux habitations distinctes, séduira tant les familles en quête d'espace que les amateurs de projets bi-familiaux. L'ensemble développe de grands volumes lumineux, une circulation fluide et un cachet authentique qui en font un lieu de vie chaleureux et modulable selon vos envies. La première maison, actuellement louée, développe une superficie habitable de 199 m² et offre un salon, une salle à manger, une cuisine, quatre chambres, deux salles de bains ainsi qu'un vaste grenier offrant un beau volume de stockage. La seconde maison, d'une superficie habitable de 114 m², comprend un séjour, une cuisine, deux chambres et une salle de bains. Elle est en cours de rafraichissement; ce qui garantit un confort contemporain et des finitions soignées. Enfin, à l'extérieur, une charmante cour pavée commune mène à un jardin, de 5 ares, agréable et intimiste profitant d'une vue dégagée sur les toits et les environs de Dinant. Cet ensemble présente ainsi une belle opportunité pour combiner revenu locatif existant et occupation d'un logement nouvellement rafraîchi, ou pour accueillir plusieurs générations au sein d'un même projet immobilier. Une exclusivité Century 21 Immo Demeuse. Contactez-nous dès aujourd'hui au 082/22.40.92 pour organiser votre visite et laissez-vous charmer par le potentiel et le cachet de cette propriété unique au coeur de Dinant !
Prix de vente 315.000€
Agence de Dinant 082 22 40 92 Nous contacter

Demande d'infos envoyée avec succès.

Retour

Demande d'infos pour ce bien

Rue Grande 2 - 5500 DINANT
082 22 40 92 - dinant@century21immodemeuse.be
IPI 501.475 - TVA : 875.888.224

Ce site utilise des cookies

Nous utilisons des cookies pour assurer le bon fonctionnement du site. Vous pouvez consulter nos mentions légales et notre politique de confidentialité pour plus d'informations.

Accepter les cookiesParamétrer ou refuser les cookies
Plus d'informations sur l'utilisation de vos données personnelles