Jolie maison de ville

239.000€ PEB D
  • icone lit 3 chambre(s)
  • icone douche 1 salle(s) de bain(s)
  • icone équerre 152 m² hab.
  • icone localisation DINANT
Demande d'informations

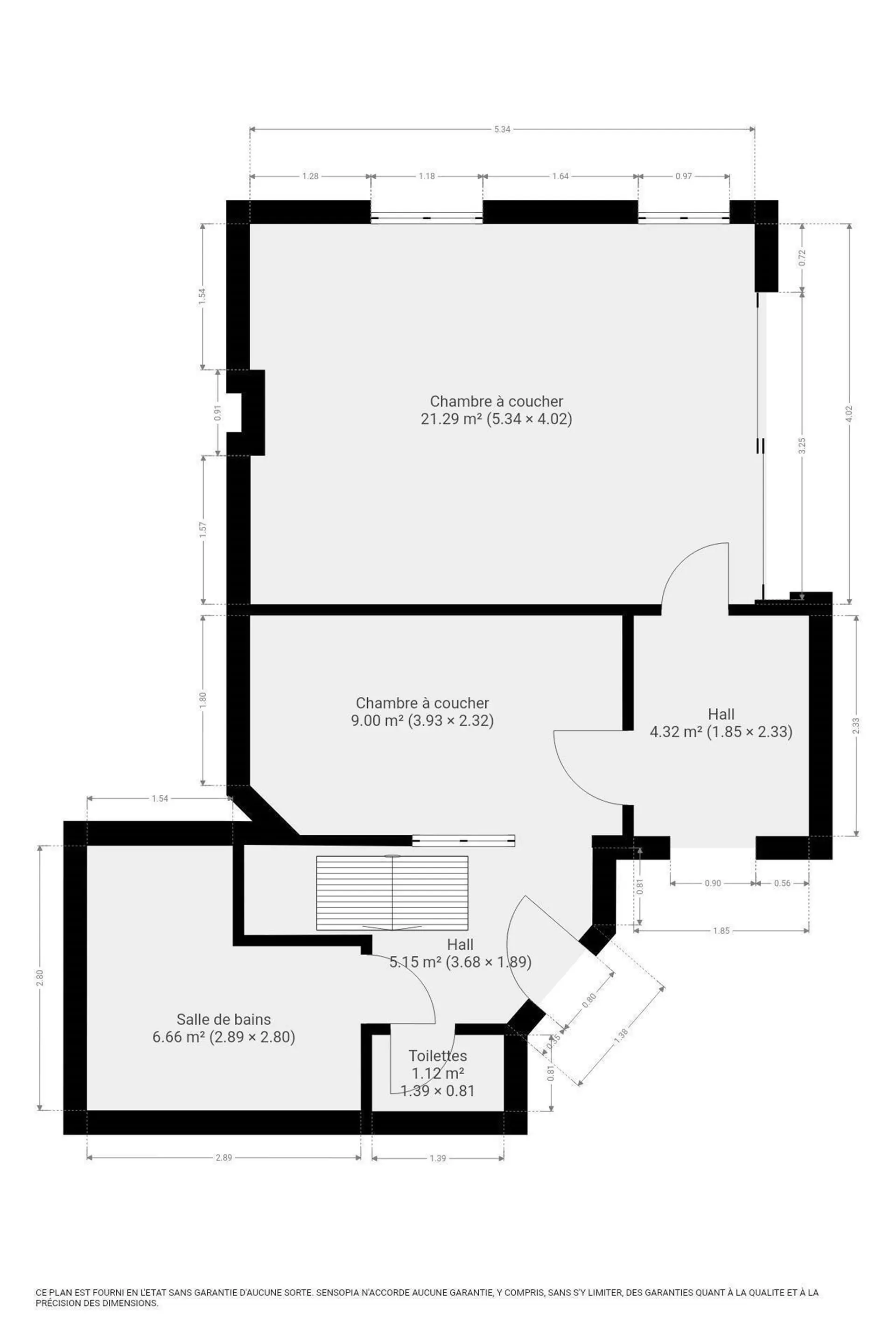
Caractéristiques du bien

Général

  • Référence 24123
  • Disponibilité A l'acte
  • Catégorie Jolie maison de ville
  • Année de construction 1899
  • Meublé Non
  • Revenu cadastral 342€
  • État du bâtiment Très bon
  • Étage 2

Interieur

  • Chambre(s) 3
  • Salle(s) de bain 1
  • WC(s) 1
  • Grenier Non
  • Chauffage C.C. au mazout
  • Cuisine Entièrement équipée
  • Vitrage Double
  • Avec bureau Non
  • Ascenseur Non

Surfaces

  • Surface brut 40 m²
  • Surface habitable 152 m²
  • Surface du living 30 m²
  • Surface du jardin 120 m²
  • Surface du terrain 180 m²

Énergie

  • Code unique 20251001001399
  • Energie spécifique (kWh/m²/an) 322
  • Energie totale (kWh/an) 48829
  • Emission CO2 (kg CO2/m²/an) 80
  • Label peb D
A
B
C
D D
E
F
G

Autres caractéristiques

  • Terrasse Oui
  • Cave(s) Non
  • Jardin Oui

Description

Découvrez cette charmante maison de ville située à Dinant, offrant une combinaison parfaite de confort moderne et de charme authentique, avec une superficie habitable de 152 m². Son emplacement stratégique proche du centre vous permet de profiter facilement des commodités locales. Le rez-de-chaussée présente une pièce de vie remarquable, agrémentée d'un mur en pierre et d'une cheminée, créant une atmosphère chaleureuse et accueillante. La cuisine ouverte, entièrement équipée, donne sur la salle à manger, offrant un cadre convivial pour partager des moments en famille ou entre amis. À l'étage, vous trouverez trois chambres spacieuses et lumineuses, idéales pour une famille ou pour accueillir des invités. La salle de bains, moderne et élégante, est équipée d'une douche et d'une baignoire, assurant un espace de détente parfait après une longue journée. À l'extérieur, laissez-vous séduire par une terrasse intime. Avec sa vue imprenable sur la vallée environnante, cette propriété constitue une opportunité rare à ne pas manquer. Venez visiter sans tarder et laissez-vous charmer par cet écrin de douceur en plein coeur de Dinant. Appelez-nous sans tarder 082/22.40.92 ! ! !
Prix de vente 239.000€
Agence de Dinant 082 22 40 92 Nous contacter

Demande d'infos envoyée avec succès.

Retour

Demande d'infos pour ce bien

Rue Grande 2 - 5500 DINANT
082 22 40 92 - dinant@century21immodemeuse.be
IPI 501.475 - TVA : 875.888.224

Ce site utilise des cookies

Nous utilisons des cookies pour assurer le bon fonctionnement du site. Vous pouvez consulter nos mentions légales et notre politique de confidentialité pour plus d'informations.

Accepter les cookiesParamétrer ou refuser les cookies
Plus d'informations sur l'utilisation de vos données personnelles