Magnifique maison en pierre avec extérérieurs entièrement aménagés

695.000€ PEB C
  • icone lit 4 chambre(s)
  • icone douche 2 salle(s) de bain(s)
  • icone équerre 239 m² hab.
  • icone localisation NAMUR
Demande d'informations

Caractéristiques du bien

Général

  • Référence 25201
  • Disponibilité A l'acte
  • Catégorie Magnifique maison en pierre avec extérérieurs entièrement aménagés
  • Année de construction 1918
  • Meublé Non
  • Revenu cadastral 745€
  • État du bâtiment Très bon

Interieur

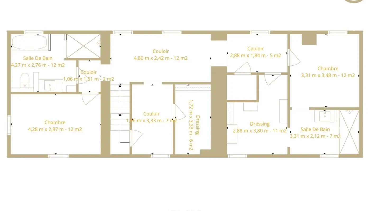
  • Chambre(s) 4
  • Salle(s) de bain 2
  • WC(s) 3
  • Grenier Non
  • Chauffage Mazout
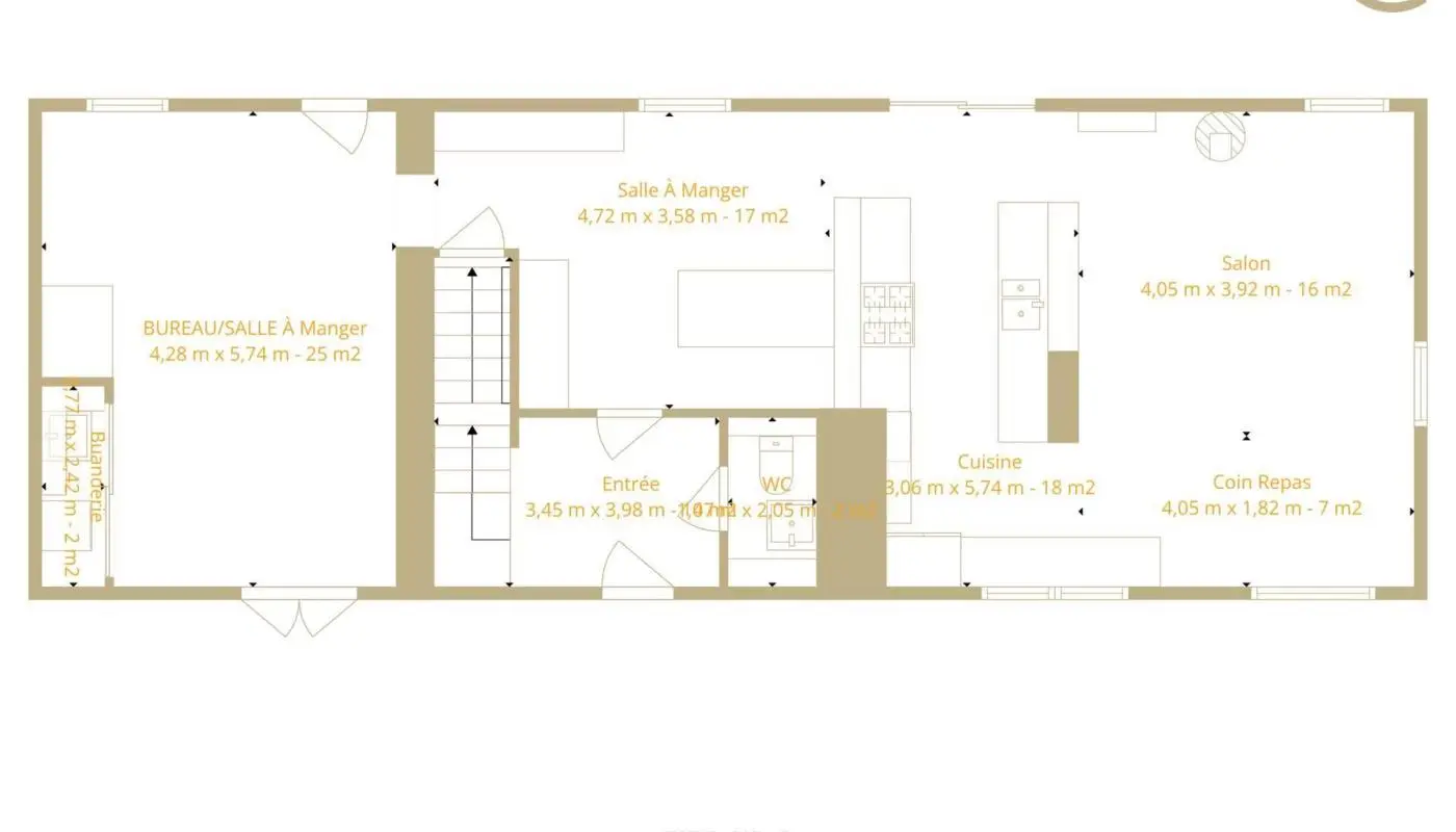
  • Cuisine Equipée
  • Vitrage Double
  • Avec bureau Non
  • Ascenseur Non

Surfaces

  • Surface habitable 239 m²
  • Surface du living 23 m²
  • Surface du jardin 3400 m²

Énergie

  • Energie spécifique (kWh/m²/an) 239
  • Energie totale (kWh/an) 53784
  • Emission CO2 (kg CO2/m²/an) 55
  • Label peb C
A
B
C C
D
E
F
G

Autres caractéristiques

  • Terrasse Oui
  • Cave(s) Oui
  • Jardin Oui

Description

Coup de cœur assuré pour cette magnifique maison en pierre entièrement rénovée, alliant charme et modernité. Situé en pleine campagne, dans un environnement calme et verdoyant, elle se compose de 4 chambres, ainsi que de 2 salles de bain complètes (baignoire et douche) et un dressing. La cuisine équipée ouverte sur le salon séduit par ses superbes voussettes au plafond. Un second espace salle à manger peut facilement accueillir un bureau pour profession libérale. Les extérieurs, entièrement aménagés, offrent un cadre de vie exceptionnel avec piscine, poolhouse, cuisine extérieure, double carport, local technique, box pour animaux et serre, le tout sublimé par un éclairage extérieur. PEB C et électricité conforme. Une opportunité rare à ne pas manquer ! Pour demander votre visite, appelez nous sans plus tarder au 081 /311 511. Offre soumise à l'acceptation du propriétaire.
Prix de vente 695.000€
Agence de Namur - Erpent 081 31 15 11 Nous contacter

Demande d'infos envoyée avec succès.

Retour

Demande d'infos pour ce bien

Chaussée de Marche 588 - 5101 ERPENT, NAMUR
081 31 15 11 - namur@century21immodemeuse.be
IPI 501.475 - TVA : 831.406.695

Ce site utilise des cookies

Nous utilisons des cookies pour assurer le bon fonctionnement du site. Vous pouvez consulter nos mentions légales et notre politique de confidentialité pour plus d'informations.

Accepter les cookiesParamétrer ou refuser les cookies
Plus d'informations sur l'utilisation de vos données personnelles