Immeuble de rapport en ordre d'urbanisme (3 unités)

195.000€ PEB E
  • icone lit 3 chambre(s)
  • icone équerre 120 m² hab.
  • icone localisation DINANT
Demande d'informations

Caractéristiques du bien

Général

  • Référence 24980
  • Catégorie Immeuble de Rapport en ordre d'urbanisme (3 unités)
  • Meublé Non
  • Revenu cadastral 728€
  • État du bâtiment A rénover
  • Étage 3/3

Interieur

  • Chambre(s) 3
  • Salle(s) de douche 3
  • WC(s) 3
  • Grenier Oui
  • Chauffage Electrique direct
  • Avec bureau Non
  • Ascenseur Non

Surfaces

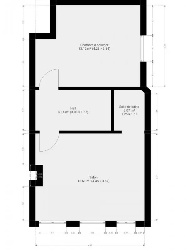
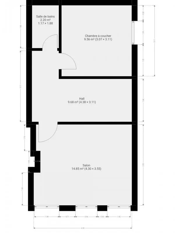
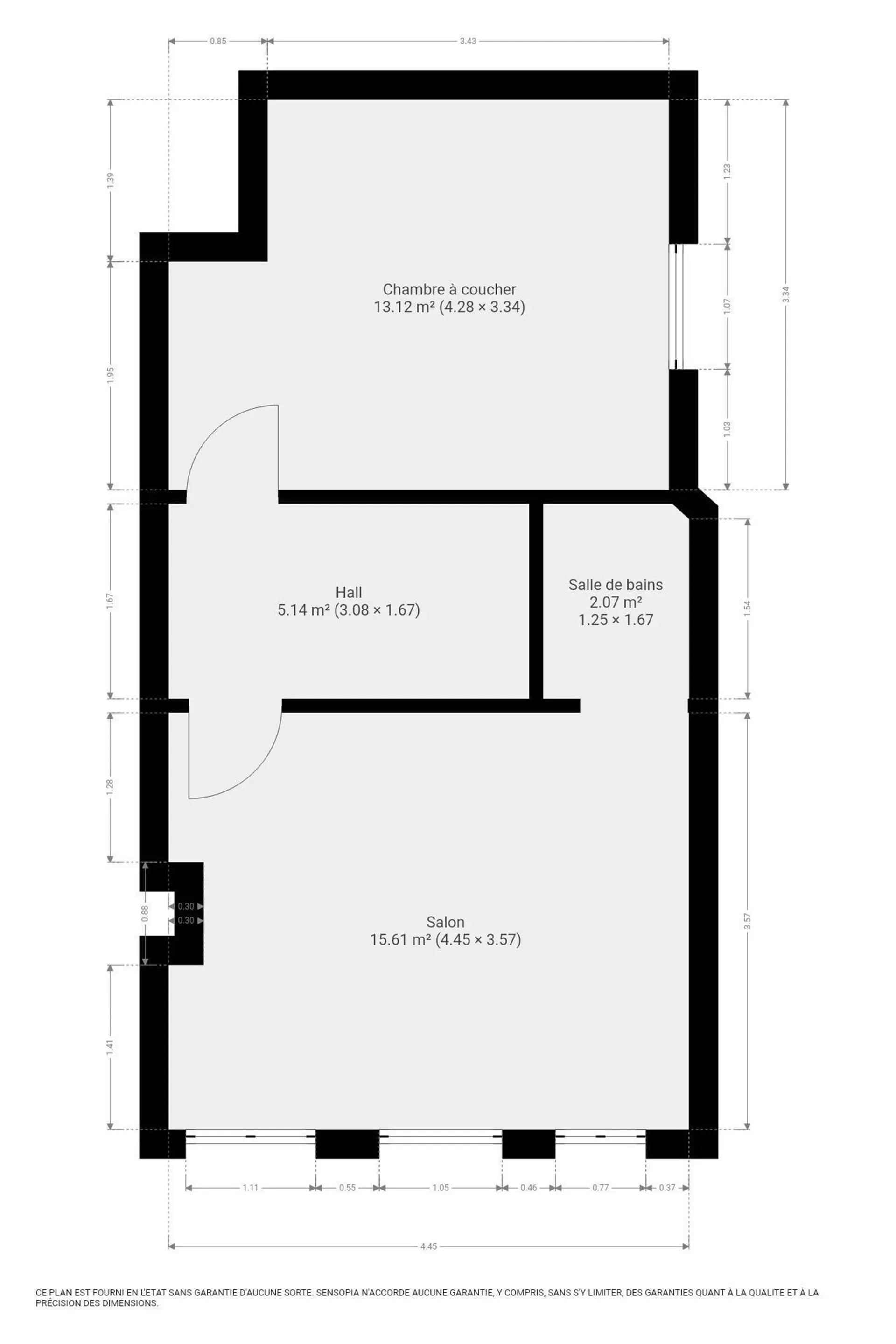
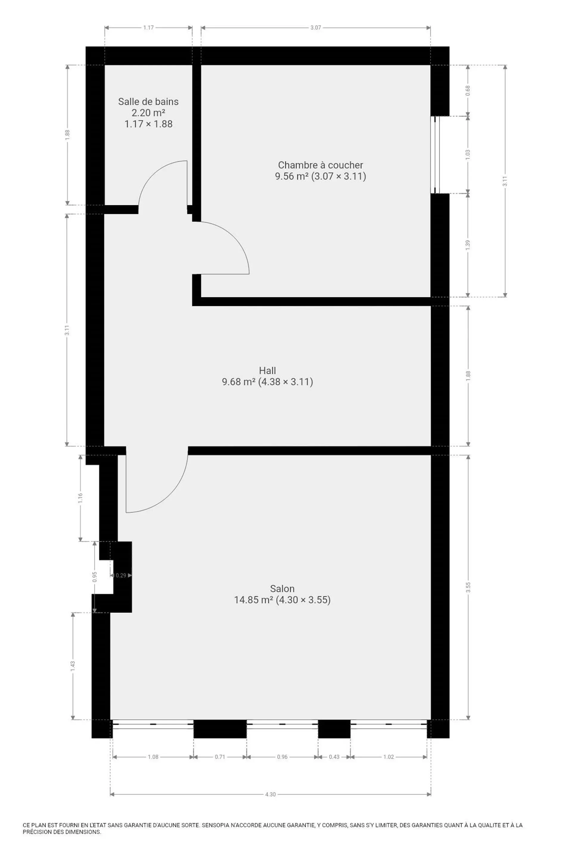
  • Surface habitable 120 m²

Énergie

  • Code unique 20230615012565
  • Energie spécifique (kWh/m²/an) 389
  • Energie totale (kWh/an) 16019
  • Label peb E
A
B
C
D
E E
F
G

Autres caractéristiques

  • Terrasse Non
  • Cave(s) Non
  • Jardin Non

Description

Idéalement situé en plein centre de Dinant, à deux pas de la Meuse et à proximité immédiate de toutes les commodités, cet immeuble, en ordre d'urbanisme, constitue une excellente opportunité d'investissement. Le bien se compose de trois unités, chacune comprenant : une chambre, un espace cuisine/séjour, une salle de douche séparée. L'ensemble est à rénover entièrement, offrant un beau potentiel de valorisation, que ce soit pour un projet locatif, un investissement ou une transformation selon vos envies. Situation recherchée, à proximité des commerces, des transports et du centre touristique de Dinant. Équipements : châssis double vitrage, compteurs électriques séparés. N'hésitez pas à nous contacter pour plus d'informations ou pour planifier une visite au 082/22 40 92 FAIRE OFFRE A PARTIR DE 195.000 € (Sous réserve de l'accord du propriétaire)
Prix de vente 195.000€
Agence de Dinant 082 22 40 92 Nous contacter

Demande d'infos envoyée avec succès.

Retour

Demande d'infos pour ce bien

Rue Grande 2 - 5500 DINANT
082 22 40 92 - dinant@century21immodemeuse.be
IPI 501.475 - TVA : 875.888.224

Ce site utilise des cookies

Nous utilisons des cookies pour assurer le bon fonctionnement du site. Vous pouvez consulter nos mentions légales et notre politique de confidentialité pour plus d'informations.

Accepter les cookiesParamétrer ou refuser les cookies
Plus d'informations sur l'utilisation de vos données personnelles