Immeuble de rapport de 3 appartements en ordre urbanistique

395.000€ PEB D
  • icone lit 3 chambre(s)
  • icone douche 3 salle(s) de bain(s)
  • icone équerre 160 m² hab.
  • icone localisation NAMUR
Demande d'informations

Caractéristiques du bien

Général

  • Référence 25257
  • Disponibilité Obligation locative à respecter
  • Catégorie Immeuble de rapport de 3 appartements en ordre urbanistique
  • Année de construction 1936
  • Meublé Non
  • Revenu cadastral 1373€
  • État du bâtiment Bon
  • Étage 3
  • Orientation Ouest

Interieur

  • Chambre(s) 3
  • Salle(s) de bain 3
  • WC(s) 3
  • Grenier Oui
  • Chauffage C.C. au gaz
  • Cuisine Equipée et aménagée
  • Vitrage Double
  • Avec bureau Non
  • Ascenseur Non

Surfaces

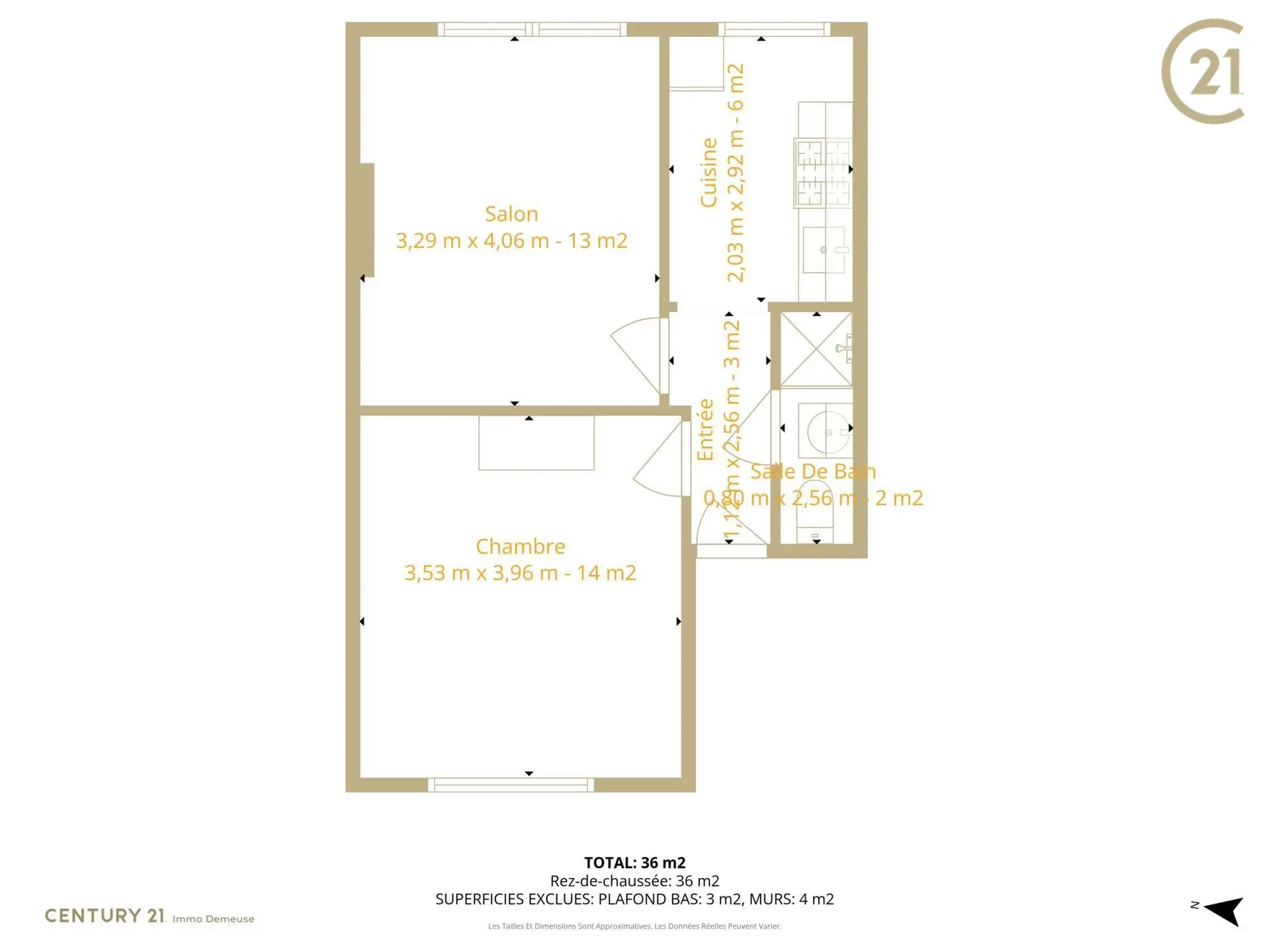
  • Surface habitable 160 m²

Énergie

  • Code unique 20260424009225
  • Energie spécifique (kWh/m²/an) 309
  • Energie totale (kWh/an) 18075
  • Emission CO2 (kg CO2/m²/an) 56
  • Label peb D
A
B
C
D D
E
F
G

Autres caractéristiques

  • Terrasse Oui
  • Cave(s) Oui
  • Jardin Oui

Description

Immeuble de rapport composé de 3 appartements une chambre idéalement situé à quelques centaines de mètres de l’Hôpital Saint Elisabeth. Une opportunité pour investisseur à la recherche d’un bien rentable, bien situé et en ordre urbanistique. L’immeuble se compose de trois appartements une chambre (dont deux loués) offrant une configuration recherchée et facile à louer. Chaque unité bénéficie de ses propres compteurs avec 3 compteurs électriques et 3 compteurs gaz, garantissant une gestion simplifiée et individualisée des consommations. Le rez de chaussée profite d’un agréable jardin privatif d’environ 100 m², véritable atout pour séduire les locataires. L’immeuble bénéficie de caves et d’une situation stratégique à proximité immédiate de toutes les facilités, commerces, transports en commun, écoles, axes routiers et services. Son emplacement à deux pas de l’Hôpital Saint Elisabeth en fait un investissement particulièrement attractif pour une mise en location durable. Un bien idéal pour constituer ou développer un patrimoine immobilier de qualité dans un secteur recherché. Offre soumise à l'accord des propriétaires.
Prix de vente 395.000€
Agence de Namur - Erpent 081 31 15 11 Nous contacter

Demande d'infos envoyée avec succès.

Retour

Demande d'infos pour ce bien

Chaussée de Marche 588 - 5101 ERPENT, NAMUR
081 31 15 11 - namur@century21immodemeuse.be
IPI 501.475 - TVA : 831.406.695

Ce site utilise des cookies

Nous utilisons des cookies pour assurer le bon fonctionnement du site. Vous pouvez consulter nos mentions légales et notre politique de confidentialité pour plus d'informations.

Accepter les cookiesParamétrer ou refuser les cookies
Plus d'informations sur l'utilisation de vos données personnelles