Immeuble avec projet pour 6 appartements

299.000€
  • icone lit 11 chambre(s)
  • icone douche 6 salle(s) de bain(s)
  • icone équerre 402 m² hab.
  • icone localisation WAULSORT
Demande d'informations

Caractéristiques du bien

Général

  • Référence 24471
  • Catégorie IMMEUBLE AVEC PROJET POUR 6 APPARTEMENTS
  • Meublé Non
  • Revenu cadastral 1289€
  • État du bâtiment A rénover
  • Étage 2

Interieur

  • Chambre(s) 11
  • Salle(s) de bain 6
  • WC(s) 6
  • Grenier Non
  • Chauffage Néant
  • Avec bureau Non
  • Ascenseur Non

Surfaces

  • Surface brut 134 m²
  • Surface habitable 402 m²
  • Surface de la terrasse 6 m²
  • Surface du terrain 430 m²

Autres caractéristiques

  • Terrasse Oui
  • Cave(s) Non
  • Jardin Non
  • Parking6

Description

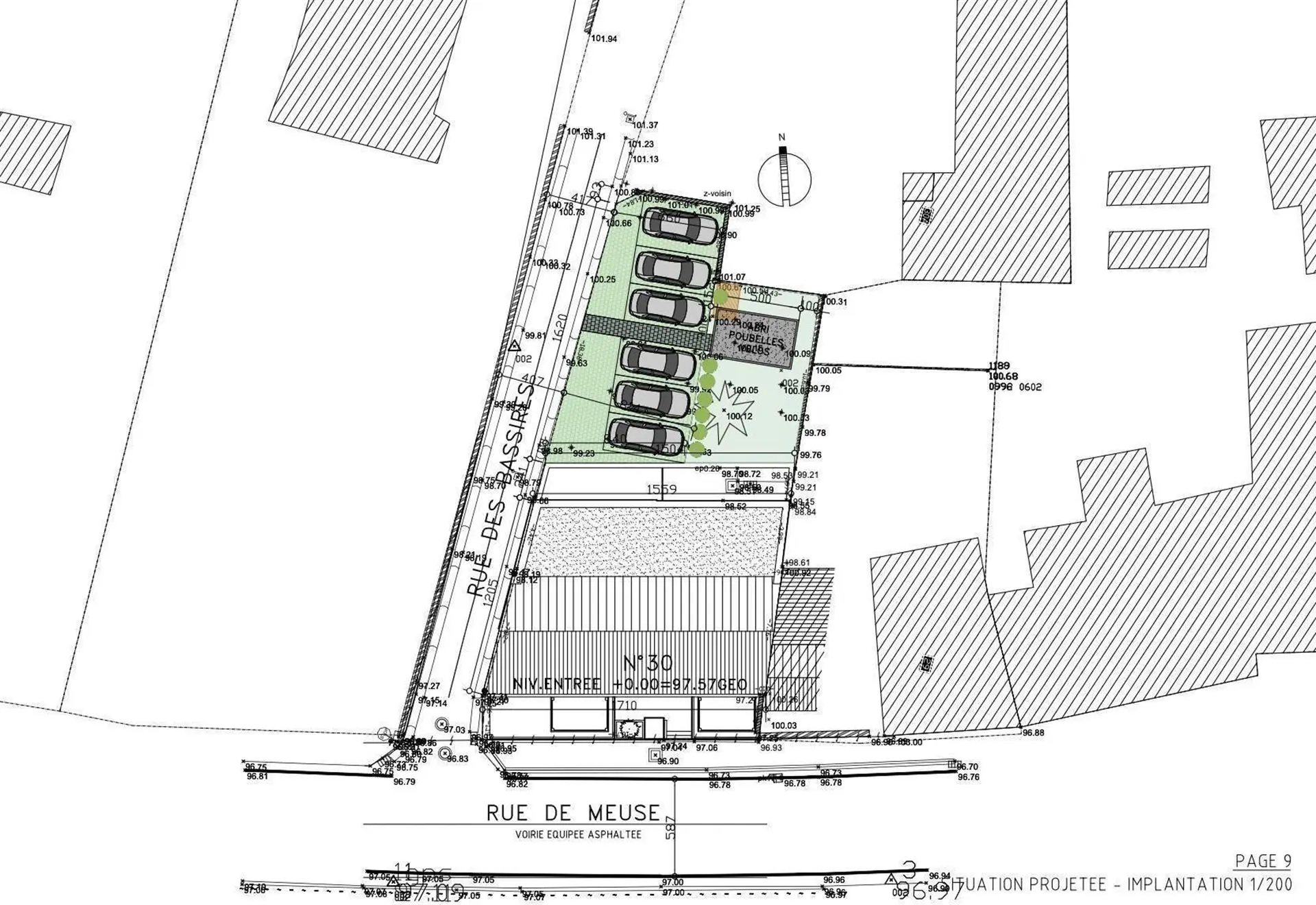
Emplacement exceptionnel avec vue directe sur la Meuse ! Situé au cœur de l’un des villages les plus convoités de la vallée mosane, ce bien rare offre un cadre de vie unique où nature, charme et sérénité se rencontrent. À Waulsort, cet immeuble profite d’un emplacement privilégié, à quelques pas de la Meuse et de ses paysages emblématiques. Le bâtiment propose un superbe potentiel de développement avec la possibilité d’y aménager 5 appartements de ±85 m² (2 chambres) et 1 appartement (1 chambre). Chaque unité bénéficie d’un espace terrasse ainsi que d’une place de stationnement privée. Les étages jouissent d’une vue imprenable sur la Meuse, atout majeur pour séduire occupants et investisseurs. ! ! ! Un projet de transformation complet a déjà été étudié : plans d’Architecte disponibles et Permis d’Urbanisme octroyé le 23/12/2024, de quoi avancer rapidement dans votre investissement ! ! ! Environnement verdoyant, promenades en bord de fleuve, charme touristique de la région… Tout ici invite à la détente et à la valorisation patrimoniale. Un cadre exclusif, idéal pour un projet résidentiel moderne et lumineux au cœur d’un écrin de nature. Contactez-nous dès aujourd’hui au 082/22.40.92 pour plus d’informations ou planifier une visite sur place !
Prix de vente 299.000€
Agence de Dinant 082 22 40 92 Nous contacter

Demande d'infos envoyée avec succès.

Retour

Demande d'infos pour ce bien

Rue Grande 2 - 5500 DINANT
082 22 40 92 - dinant@century21immodemeuse.be
IPI 501.475 - TVA : 875.888.224

Ce site utilise des cookies

Nous utilisons des cookies pour assurer le bon fonctionnement du site. Vous pouvez consulter nos mentions légales et notre politique de confidentialité pour plus d'informations.

Accepter les cookiesParamétrer ou refuser les cookies
Plus d'informations sur l'utilisation de vos données personnelles