A deux pas des axes routiers et commodités citadines: bonne maison d'habitation.

249.000€ PEB E
  • icone lit 3 chambre(s)
  • icone douche 1 salle(s) de bain(s)
  • icone équerre 101 m² hab.
  • icone localisation CINEY
Demande d'informations

Caractéristiques du bien

Général

  • Référence 24168
  • Disponibilité A l'acte
  • Catégorie A deux pas des axes routiers et commodités Citadines: bonne maison d'habitation.
  • Année de construction 1966
  • Meublé Non
  • Revenu cadastral 716€
  • État du bâtiment A rafraîchir
  • Étage 2/2
  • Orientation Nord-est

Interieur

  • Chambre(s) 3
  • Salle(s) de bain 1
  • WC(s) 1
  • Grenier Oui
  • Chauffage C.C. au mazout
  • Cuisine Equipée et aménagée
  • Vitrage Double
  • Avec bureau Non
  • Ascenseur Non

Surfaces

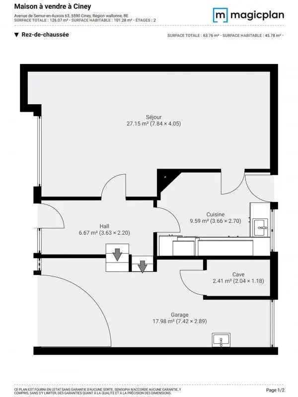
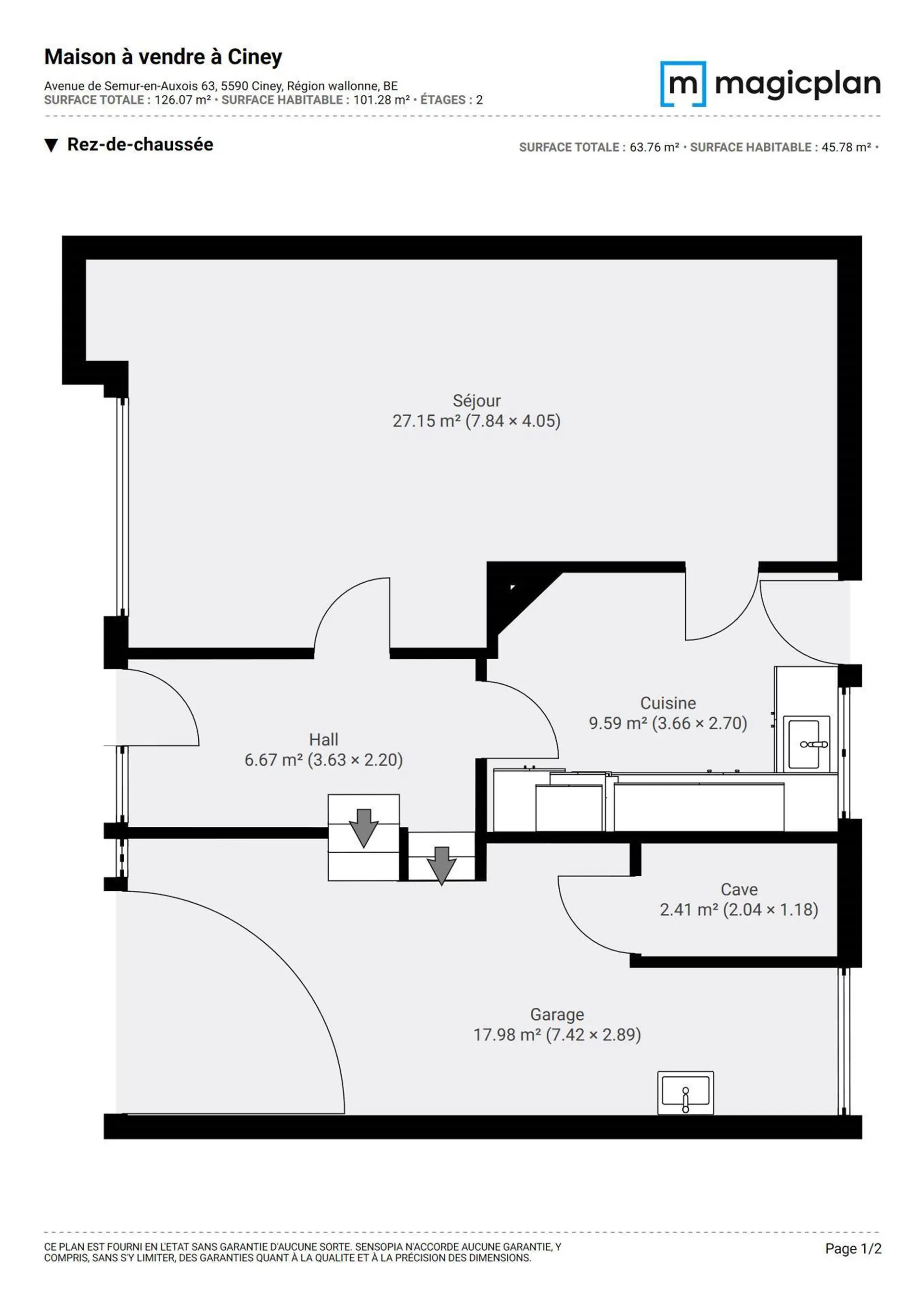
  • Surface habitable 101 m²
  • Surface du living 27 m²
  • Surface du jardin 592 m²
  • Surface du terrain 592 m²

Énergie

  • Code unique 20254027005104
  • Energie spécifique (kWh/m²/an) 421
  • Energie totale (kWh/an) 14319
  • Emission CO2 (kg CO2/m²/an) 104
  • Label peb E
A
B
C
D
E E
F
G

Autres caractéristiques

  • Terrasse Oui
  • Cave(s) Non
  • Jardin Oui
  • Garage1

Description

À vendre à Ciney, dans un joli quartier calme et proche de toutes les commodités (commerces, parc, écoles et gare accessibles à pied en quelques minutes), cette maison trois façades pleine de potentiel qui n’attend plus qu’à être remise au goût du jour. Elle se compose d’un hall d’entrée, d’un lumineux séjour, d’une cuisine, d’une salle de bain et d’un WC séparé. À l’étage, vous trouverez trois chambres ainsi qu’un grand grenier et deux petits espaces de rangement. L’extérieur vous séduira par son beau jardin sans vis-à-vis, sa terrasse ensoleillée, plusieurs emplacements de parking et son garage pratique. Une belle opportunité pour les amateurs de rénovation souhaitant s’installer dans un cadre paisible et recherché dans le Condroz! Faire offre à partir de 249.000€ (sous réserve de l'accord des vendeurs).
Prix de vente 249.000€
Agence de Ciney 083 21 21 61 Nous contacter

Demande d'infos envoyée avec succès.

Retour

Demande d'infos pour ce bien

Rue du Commerce 1 - 5590 CINEY
083 21 21 61 - info@century21immodemeuse.be
IPI 501.475 - TVA : 875.888.224

Ce site utilise des cookies

Nous utilisons des cookies pour assurer le bon fonctionnement du site. Vous pouvez consulter nos mentions légales et notre politique de confidentialité pour plus d'informations.

Accepter les cookiesParamétrer ou refuser les cookies
Plus d'informations sur l'utilisation de vos données personnelles