Maison

79.000€ PEB G
  • icone lit 2 chambre(s)
  • icone douche 1 salle(s) de bain(s)
  • icone équerre 130 m² hab.
  • icone localisation COURCELLES
Demande d'informations

Caractéristiques du bien

Général

  • Référence 23474
  • Disponibilité A l'acte
  • Catégorie maison
  • Meublé Non
  • Revenu cadastral 342€
  • Précompte immobilier 342€
  • État du bâtiment A rénover

Interieur

  • Chambre(s) 2
  • Salle(s) de bain 1
  • WC(s) 1
  • Grenier Non
  • Chauffage C.C. au gaz
  • Cuisine Néant
  • Vitrage Double
  • Avec bureau Non
  • Ascenseur Non

Surfaces

  • Surface brut 150 m²
  • Surface habitable 130 m²
  • Surface du living 20 m²
  • Surface de la terrasse 20 m²
  • Surface du terrain 150 m²

Énergie

  • Code unique 20250707029770
  • Energie spécifique (kWh/m²/an) 529
  • Energie totale (kWh/an) 67654
  • Emission CO2 (kg CO2/m²/an) 99
  • Label peb G
A
B
C
D
E
F
G G

Autres caractéristiques

  • Terrasse Oui
  • Cave(s) Non
  • Jardin Non

Description

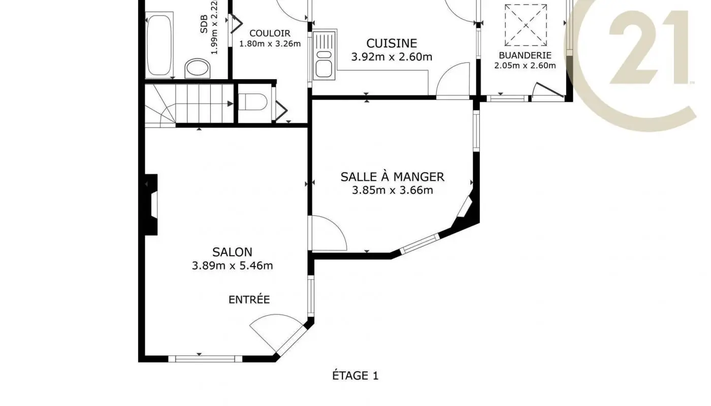
Century 21 Alliance - Demeuse vous présente cette maison SANS JARDIN située à Courcelles, idéale pour les amateurs de rénovation. Avec une surface habitable de +/- 130 m² sur un terrain de 150 m², cette propriété offre un potentiel remarquable. L'intérieur se distingue par une salle à manger lumineuse et un salon spacieux, parfaits pour les réceptions. La cuisine, donne accès à une buanderie. La maison comprend deux chambres à l'étage. Cette propriété est une opportunité unique de créer une maison à votre image, avec le charme authentique de Courcelles en toile de fond. Profitez du calme et de l'accessibilité. Le bien ne dispose pas de jardin. Ne manquez pas la chance de transformer cette maison en votre futur foyer idéal. Contactez-nous au 071/771.821 pour organiser une visite au plus vite !
Prix de vente 79.000€
Agence de Sambreville 071 77 18 21 Nous contacter

Demande d'infos envoyée avec succès.

Retour

Demande d'infos pour ce bien

Rue du Centre 24 - 5060 SAMBREVILLE
071 77 18 21 - sambreville@century21immodemeuse.be
IPI 501.475 - TVA : 875.888.224

Ce site utilise des cookies

Nous utilisons des cookies pour assurer le bon fonctionnement du site. Vous pouvez consulter nos mentions légales et notre politique de confidentialité pour plus d'informations.

Accepter les cookiesParamétrer ou refuser les cookies
Plus d'informations sur l'utilisation de vos données personnelles