Century 21 alliance-demeuse vous présente

99.000€ PEB G
  • icone lit 2 chambre(s)
  • icone douche 1 salle(s) de bain(s)
  • icone équerre 113 m² hab.
  • icone localisation HAM-SUR-SAMBRE
Demande d'informations

Caractéristiques du bien

Général

  • Référence 23887
  • Disponibilité A l'acte
  • Catégorie CENTURY 21 Alliance-Demeuse vous présente
  • Année de construction 1875
  • Meublé Non
  • Revenu cadastral 349€
  • État du bâtiment A rénover
  • Orientation Sud

Interieur

  • Chambre(s) 2
  • Salle(s) de bain 1
  • WC(s) 1
  • Grenier Oui
  • Chauffage Néant
  • Cuisine Armoires seulement
  • Vitrage Simple
  • Avec bureau Non
  • Ascenseur Non

Surfaces

  • Surface brut 125 m²
  • Surface habitable 113 m²
  • Surface du living 38 m²
  • Surface de la terrasse 15 m²
  • Surface du jardin 355 m²
  • Surface du terrain 480 m²

Énergie

  • Code unique 20250825020171
  • Energie spécifique (kWh/m²/an) 845
  • Energie totale (kWh/an) 99245
  • Emission CO2 (kg CO2/m²/an) 217
  • Label peb G
A
B
C
D
E
F
G G

Autres caractéristiques

  • Terrasse Oui
  • Cave(s) Oui
  • Jardin Oui
  • Garage1

Description

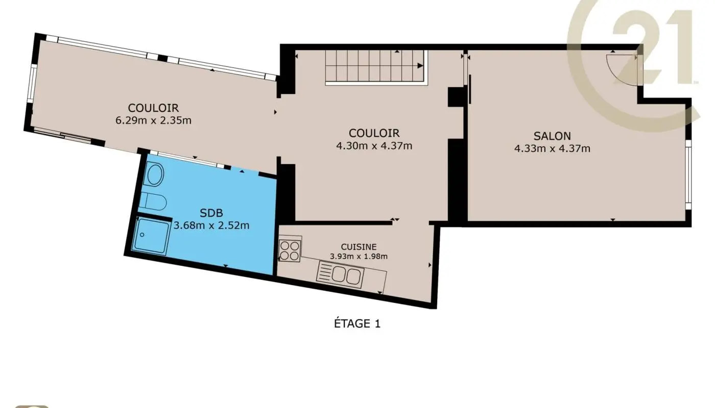
Century 21 Alliance Demeuse vous propose cette maison idéalement située à Ham-sur-Sambre, offrant un beau potentiel de rénovation. Avec ses 113 m² habitables, elle constitue une opportunité intéressante pour les investisseurs comme pour les familles souhaitant créer un lieu de vie à leur image. Au rez-de-chaussée, vous découvrirez un salon, une salle à manger ouverte sur la cuisine, une salle de douche ainsi qu’un espace véranda non isolé et à rénover. À l’étage, la maison dispose de deux chambres et d’un grenier aménageable, offrant un potentiel supplémentaire. Le bien est complété par un garage et un terrain généreux permettant de nombreux aménagements extérieurs. Située dans un environnement calme et verdoyant, la propriété bénéficie d’une cour arrière avec accès au jardin, tout en restant proche des commerces, des écoles et des transports en commun, avec un accès rapide aux axes routiers. Des travaux de modernisation sont à prévoir (PEB G, châssis simple vitrage aluminium, électricité non conforme), mais les volumes et la configuration offrent une excellente base pour un projet de rénovation. Intéressé(e) ? Informations et demande de visite au 071/77.18.21 ou par mail à l'adresse sambreville@century21immodemeuse.be CENTURY 21 Alliance-Demeuse
Prix de vente 99.000€
Agence de Sambreville 071 77 18 21 Nous contacter

Demande d'infos envoyée avec succès.

Retour

Demande d'infos pour ce bien

Rue du Centre 24 - 5060 SAMBREVILLE
071 77 18 21 - sambreville@century21immodemeuse.be
IPI 501.475 - TVA : 875.888.224

Ce site utilise des cookies

Nous utilisons des cookies pour assurer le bon fonctionnement du site. Vous pouvez consulter nos mentions légales et notre politique de confidentialité pour plus d'informations.

Accepter les cookiesParamétrer ou refuser les cookies
Plus d'informations sur l'utilisation de vos données personnelles