Vaste maison 3 chambres avec jardin

239.000€ PEB E
  • icone lit 3 chambre(s)
  • icone douche 1 salle(s) de bain(s)
  • icone équerre 167 m² hab.
  • icone localisation FLOREFFE
Demande d'informations

Caractéristiques du bien

Général

  • Référence 25112
  • Disponibilité A l'acte
  • Catégorie Vaste maison 3 chambres avec jardin
  • Année de construction 1967
  • Meublé Non
  • Revenu cadastral 870€
  • État du bâtiment A rafraîchir
  • Orientation Sud-est

Interieur

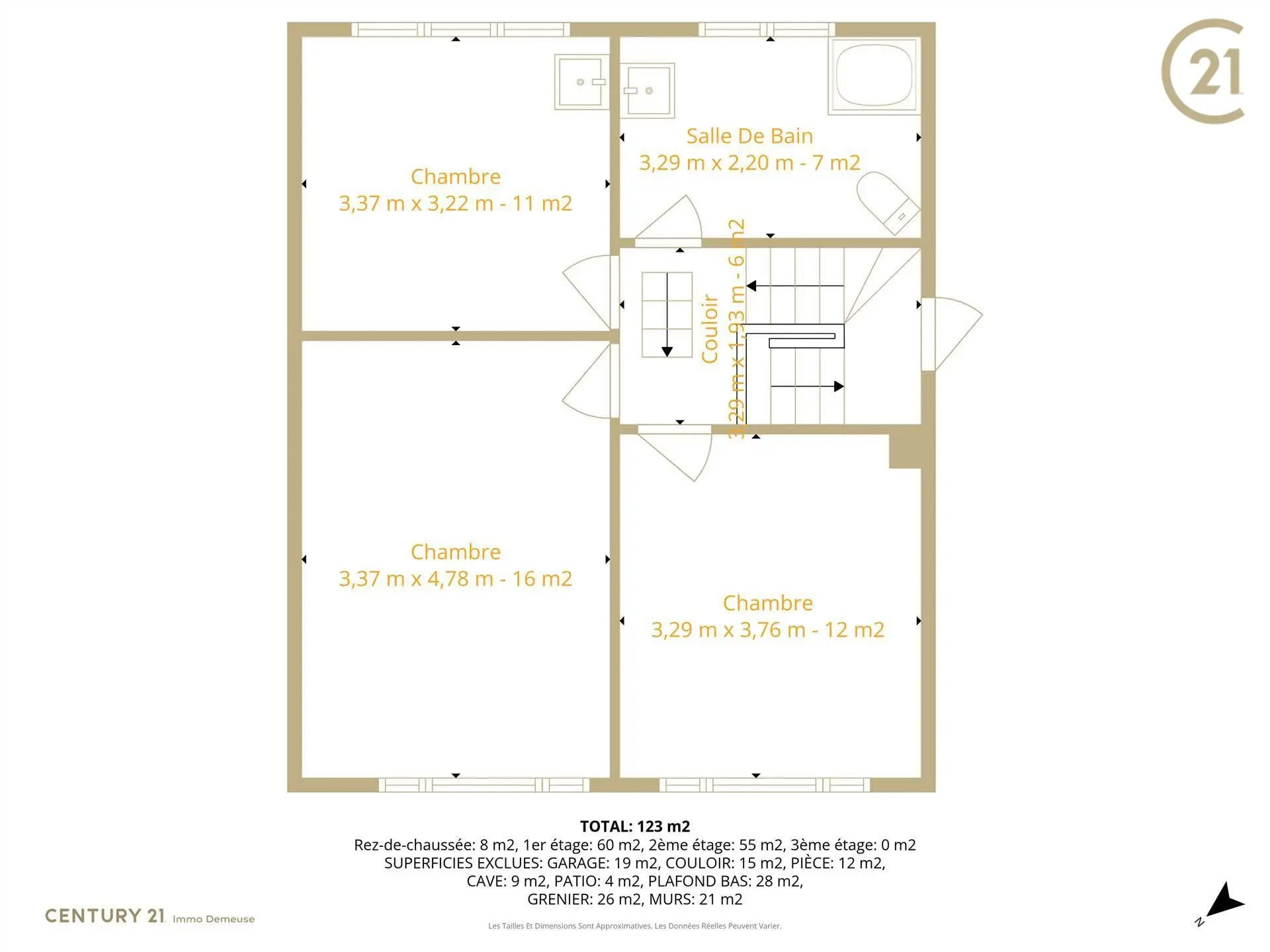
  • Chambre(s) 3
  • Salle(s) de bain 1
  • WC(s) 2
  • Grenier Oui
  • Chauffage C.C. au mazout
  • Cuisine semi équipée
  • Vitrage Double
  • Avec bureau Non
  • Ascenseur Non

Surfaces

  • Surface habitable 167 m²
  • Surface du living 40 m²
  • Surface du terrain 375 m²

Énergie

  • Code unique 20260319013507
  • Energie spécifique (kWh/m²/an) 419
  • Energie totale (kWh/an) 83213
  • Emission CO2 (kg CO2/m²/an) 103
  • Label peb E
A
B
C
D
E E
F
G

Autres caractéristiques

  • Terrasse Non
  • Cave(s) Oui
  • Jardin Non
  • Garage1
  • Parking2

Description

À découvrir sans tarder : charmante maison bel étage 3 façades à rafraîchir, idéalement située à Floreffe, à proximité des grands axes et de toutes les facilités. Offrant une superficie utile d’environ 200 m², cette habitation séduit par ses beaux volumes et son fort potentiel d’aménagement. Vous serez immédiatement conquis par son séjour traversant, baigné de lumière naturelle, créant un espace de vie agréable et convivial. La maison dispose de 3 chambres ainsi que d’un grand grenier aménageable, idéal pour créer des espaces supplémentaires selon vos besoins (chambres, bureau, salle de jeux…). De belles caves complètent l’ensemble, offrant de nombreux espaces de rangement, ainsi qu’un garage. À l’extérieur, vous profiterez d’un jardin cosy et intimiste, orienté sud-est, parfait pour vos moments de détente. Une opportunité rare pour les amateurs de projets souhaitant personnaliser leur futur chez-soi dans un cadre agréable. Offre soumise à l'accord des propriétaires.
Prix de vente 239.000€
Agence de Namur - Erpent 081 31 15 11 Nous contacter

Demande d'infos envoyée avec succès.

Retour

Demande d'infos pour ce bien

Chaussée de Marche 588 - 5101 ERPENT, NAMUR
081 31 15 11 - namur@century21immodemeuse.be
IPI 501.475 - TVA : 831.406.695

Ce site utilise des cookies

Nous utilisons des cookies pour assurer le bon fonctionnement du site. Vous pouvez consulter nos mentions légales et notre politique de confidentialité pour plus d'informations.

Accepter les cookiesParamétrer ou refuser les cookies
Plus d'informations sur l'utilisation de vos données personnelles