Maison 3 façades

145.000€ PEB E
  • icone lit 5 chambre(s)
  • icone douche 1 salle(s) de bain(s)
  • icone équerre 233 m² hab.
  • icone localisation ROCHEFORT
Demande d'informations

Caractéristiques du bien

Général

  • Référence 23480
  • Disponibilité A l'acte
  • Catégorie Maison 3 façades
  • Meublé Non
  • Revenu cadastral 743€
  • Précompte immobilier 743€
  • État du bâtiment A rénover
  • Étage 2/2

Interieur

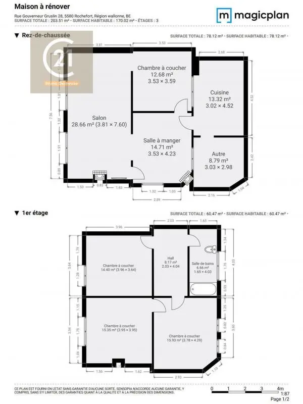
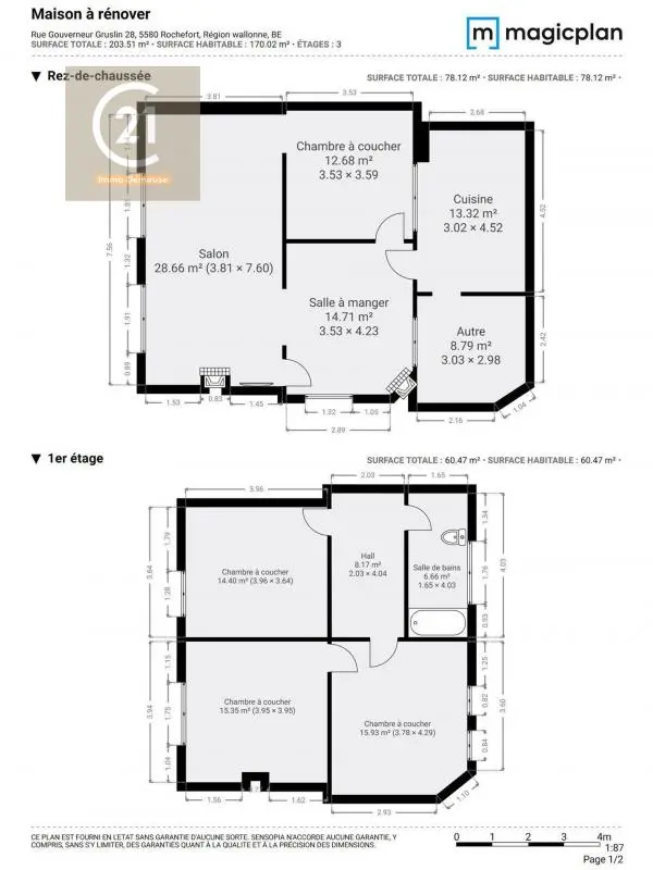
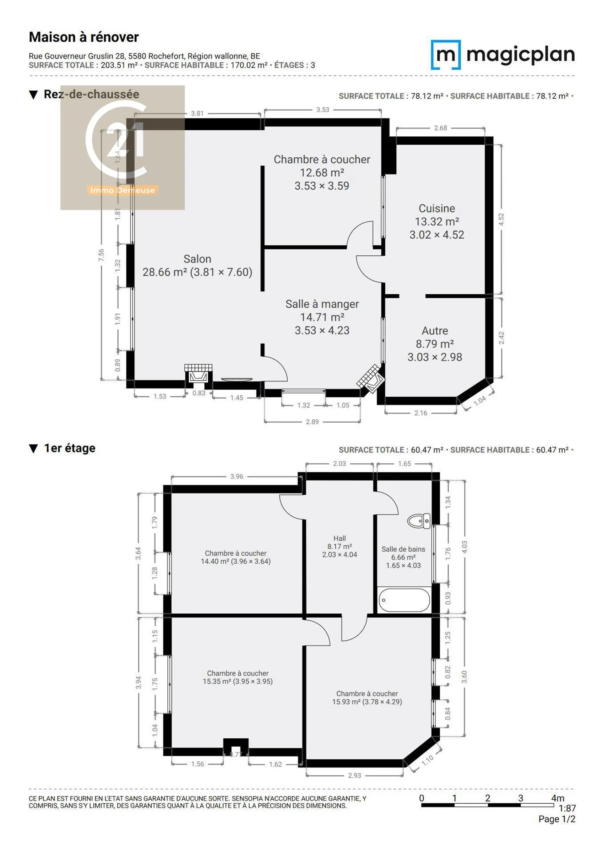
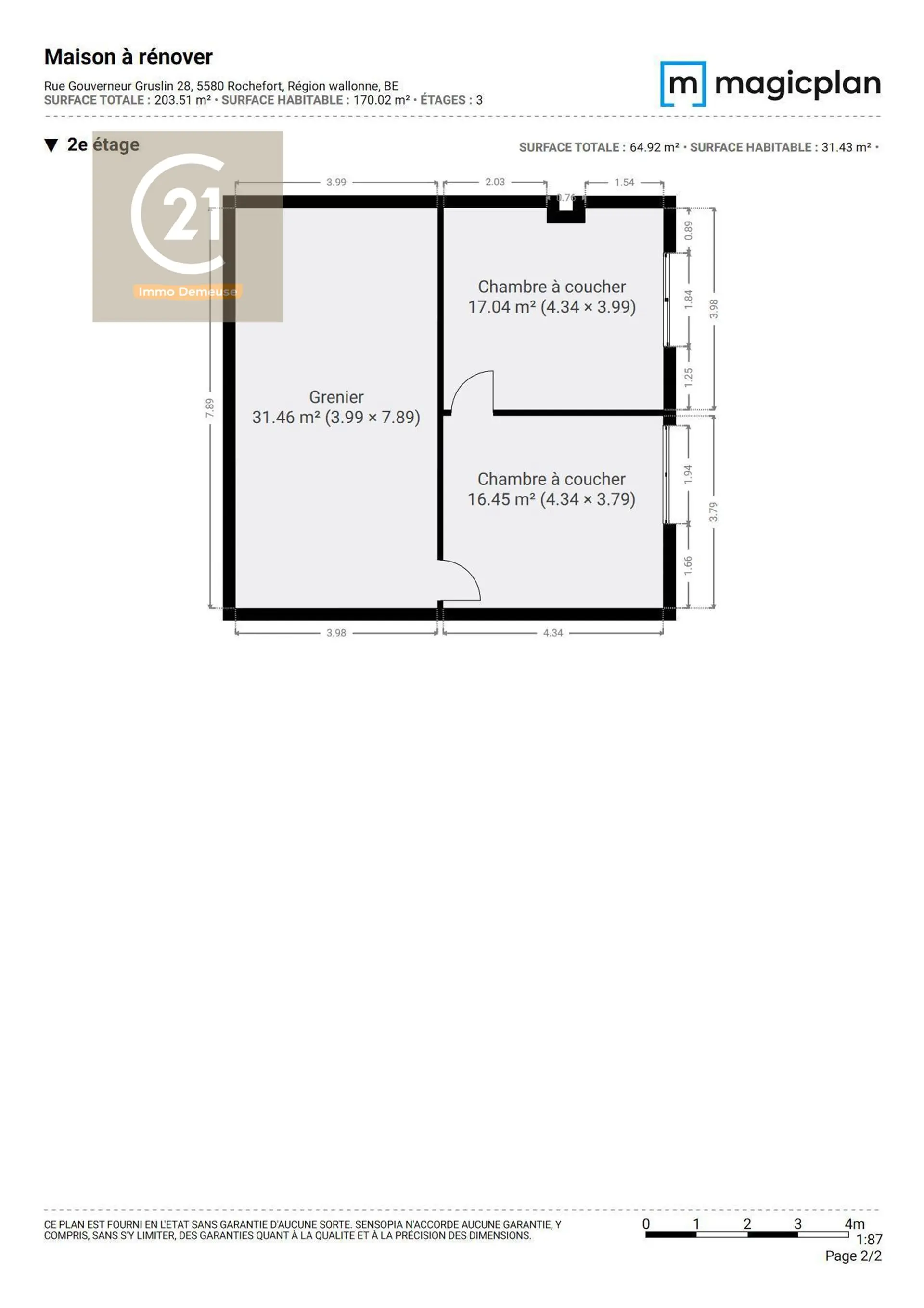
  • Chambre(s) 5
  • Salle(s) de bain 1
  • WC(s) 1
  • Grenier Oui
  • Chauffage C.C. au mazout
  • Cuisine semi équipée
  • Vitrage Double
  • Avec bureau Non
  • Ascenseur Non

Surfaces

  • Surface habitable 233 m²
  • Surface du living 29 m²
  • Surface du jardin 543 m²
  • Surface du terrain 543 m²

Énergie

  • Code unique 20250715001378
  • Energie spécifique (kWh/m²/an) 354
  • Energie totale (kWh/an) 20359
  • Emission CO2 (kg CO2/m²/an) 87
  • Label peb E
A
B
C
D
E E
F
G

Autres caractéristiques

  • Terrasse Non
  • Cave(s) Oui
  • Jardin Oui

Description

Découvrez cette charmante maison à rénover située à Rochefort, idéale pour accueillir votre famille grâce à ses 5 chambres spacieuses ( possibilité d'en faire une 6ème au rez-de-chaussée). Son intérieur lumineux et chaleureux vous séduira par ses atouts uniques. Le vaste salon, agrémenté d'une cheminée rustique, invite à la détente et au partage, tandis que la salle à manger est parfaite pour les repas conviviaux. La cuisine équipée est fonctionnelle, offrant un espace optimal pour préparer vos plats favoris. La maison dispose d'une salle de bain bien agencée. Les chambres sont généreusement dimensionnées avec une belle lumière naturelle, offrant un espace personnel pour chacun. De plus, la présence d'un atelier à l'arrière est un atout pour les bricoleurs ou pour un espace de rangement supplémentaire. Cette maison dispose aussi d'un jardin (en pente). Profitez également de la proximité des commodités locales tout en bénéficiant d’un cadre de vie paisible. Ne manquez pas l'opportunité de visiter cette maison au potentiel immense qui n'attend que votre touche personnelle pour se transformer en un cocon familial idéal. PRIX : 145.000€ (sous réserve d'acceptation des vendeurs)
Prix de vente 145.000€
Agence de Rochefort 084 39 50 21 Nous contacter

Demande d'infos envoyée avec succès.

Retour

Demande d'infos pour ce bien

Rue de Behogne 37 - 5580 ROCHEFORT
084 39 50 21 - rochefort@century21immodemeuse.be
IPI 501.475 - TVA : 875.888.224

Ce site utilise des cookies

Nous utilisons des cookies pour assurer le bon fonctionnement du site. Vous pouvez consulter nos mentions légales et notre politique de confidentialité pour plus d'informations.

Accepter les cookiesParamétrer ou refuser les cookies
Plus d'informations sur l'utilisation de vos données personnelles