Vente en viager (non libre): belle maison de caractère avec jardin

375.000€ PEB G
  • icone lit 4 chambre(s)
  • icone douche 1 salle(s) de bain(s)
  • icone équerre 248 m² hab.
  • icone localisation JENEFFE
Demande d'informations

Caractéristiques du bien

Général

  • Référence 24160
  • Disponibilité Bail à vie
  • Catégorie VENTE EN VIAGER (non libre): Belle maison de caractère avec jardin
  • Meublé Non
  • État du bâtiment Bon
  • Étage 2/2

Interieur

  • Chambre(s) 4
  • Salle(s) de bain 1
  • WC(s) 2
  • Grenier Non
  • Avec bureau Non
  • Ascenseur Non

Surfaces

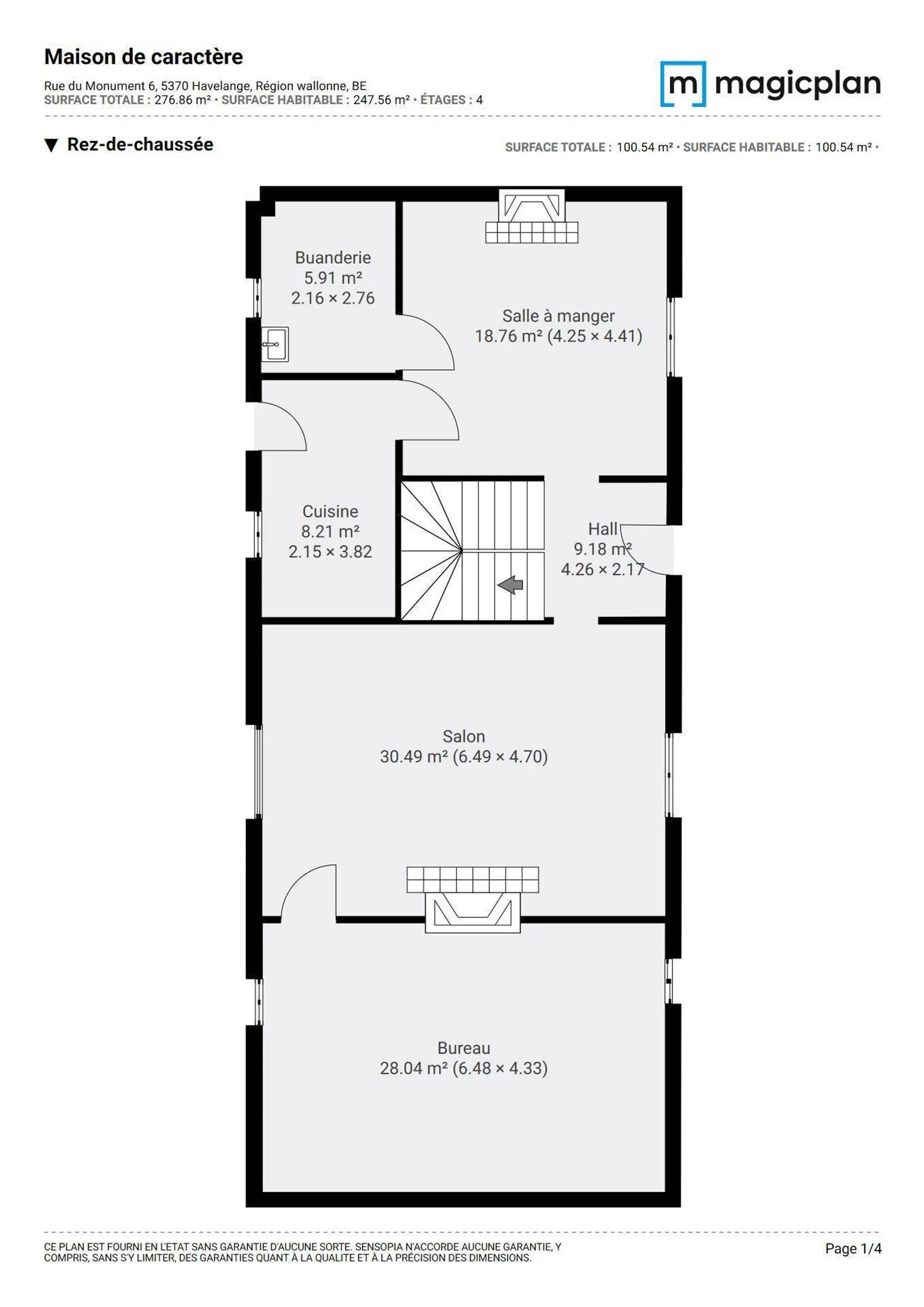
  • Surface habitable 248 m²
  • Surface du living 30 m²
  • Surface du jardin 2260 m²

Énergie

  • Code unique 20250519015981
  • Energie spécifique (kWh/m²/an) 659
  • Energie totale (kWh/an) 188658
  • Emission CO2 (kg CO2/m²/an) 150
  • Label peb G
A
B
C
D
E
F
G G

Autres caractéristiques

  • Terrasse Oui
  • Cave(s) Oui
  • Jardin Oui
  • Garage1

Description

**** VENTE EN VIAGER**** Découvrez cette jolie maison de caractère située à JENEFFE, offrant un mélange harmonieux de charme historique et de confort. Avec ses 247,56 m² habitables, cette habitation est idéale pour une famille à la recherche d'espace et de tranquillité. Son intérieur chaleureux est mis en valeur par une salle à manger raffinée parfait pour des moments conviviaux en famille ou entre amis. Le salon est un véritable havre de paix, souligné par des poutres apparentes et un foyer en pierre, offrant une ambiance rustique et authentique. Une magnifique chambre principale, ornée de murs en pierre, apporte une touche d'élégance et de sérénité à votre espace nuit. À l'extérieur, un jardin magnifiquement arboré offre un cadre idéal pour se détendre ou recevoir, et la présence d'un garage est un atout supplémentaire pour le stationnement et le rangement. Cette propriété incarne le mariage parfait entre le charme de l'ancien et la fonctionnalité moderne, le tout dans un cadre verdoyant et paisible. Ne manquez pas cette opportunité rare de vous offrir une maison de rêve à JENEFFE. BOUQUET: 40.000€ - Rente mensuelle: 1.400€/mois pendant 15 ans
Prix de vente 375.000€
Agence de Ciney 083 21 21 61 Nous contacter

Demande d'infos envoyée avec succès.

Retour

Demande d'infos pour ce bien

Rue du Commerce 1 - 5590 CINEY
083 21 21 61 - info@century21immodemeuse.be
IPI 501.475 - TVA : 875.888.224

Ce site utilise des cookies

Nous utilisons des cookies pour assurer le bon fonctionnement du site. Vous pouvez consulter nos mentions légales et notre politique de confidentialité pour plus d'informations.

Accepter les cookiesParamétrer ou refuser les cookies
Plus d'informations sur l'utilisation de vos données personnelles