Maison neuve sur près de 20 ares

419.000€ PEB B
  • icone lit 3 chambre(s)
  • icone douche 1 salle(s) de bain(s)
  • icone équerre 120 m² hab.
  • icone localisation MONT
Demande d'informations

Caractéristiques du bien

Général

  • Référence 24937
  • Disponibilité A l'acte
  • Catégorie Maison neuve sur près de 20 ares
  • Année de construction 2026
  • Meublé Non
  • État du bâtiment Nouvelle construction
  • Orientation Ouest

Interieur

  • Chambre(s) 3
  • Salle(s) de bain 1
  • WC(s) 2
  • Grenier Oui
  • Chauffage Pompe à chaleur
  • Cuisine Néant
  • Vitrage Double
  • Avec bureau Non
  • Ascenseur Non

Surfaces

  • Surface habitable 120 m²
  • Surface du living 38 m²
  • Surface du jardin 1967 m²
  • Surface du terrain 1967 m²

Énergie

  • Code unique 20260208501854
  • Energie spécifique (kWh/m²/an) 112
  • Energie totale (kWh/an) 17017
  • Emission CO2 (kg CO2/m²/an) 28
  • Label peb B
A
B B
C
D
E
F
G

Autres caractéristiques

  • Terrasse Non
  • Cave(s) Non
  • Jardin Oui
  • Parking4

Description

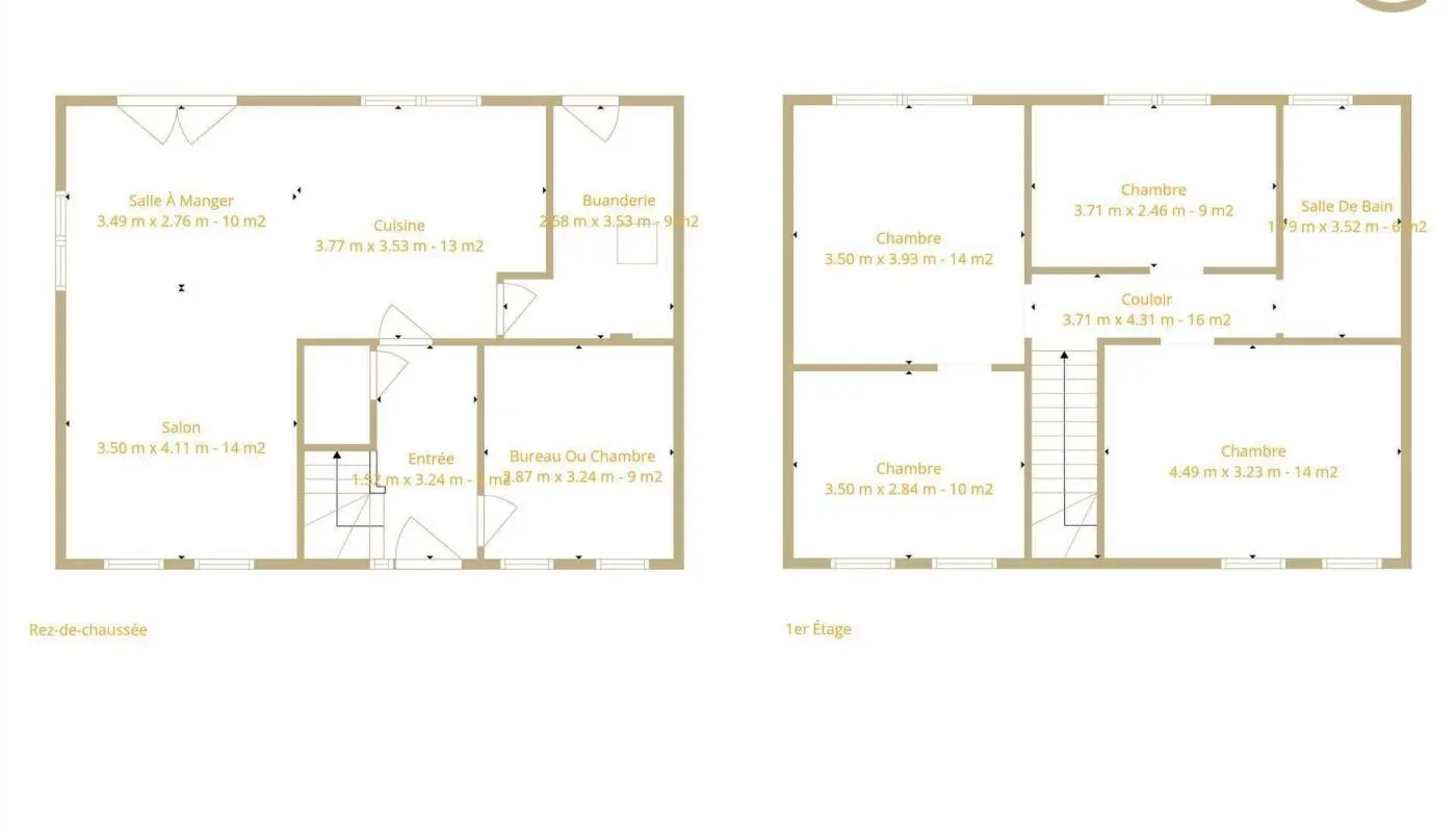
Située dans une rue à sens unique du joli village de Mont Godinne, cette maison offre un cadre de vie calme et verdoyant tout en bénéficiant d’une excellente accessibilité. Implantée sur un superbe terrain de près de 20 ares, elle séduira les amateurs d’espace et de tranquillité. La maison développe une surface habitable d’environ 120 m² et propose trois chambres ainsi qu’un bureau, idéal pour le télétravail ou un espace polyvalent. Le séjour de 38 m² constitue une belle pièce de vie lumineuse, offrant de nombreuses possibilités d’aménagement. Le bien n’est pas entièrement terminé, laissant aux futurs acquéreurs l’opportunité d’y apporter leur touche personnelle, notamment pour la cuisine et les sanitaires. Une base saine et moderne permet d’imaginer un intérieur à votre image. Sur le plan technique, la maison est déjà équipée d’une VMC, d’une pompe à chaleur et d’une citerne d’eau de pluie de 15.000 litres, garantissant confort et efficacité énergétique. La proximité immédiate de l’hôpital de Mont Godinne constitue un atout majeur, tant pour les professionnels de la santé que pour la facilité d’accès aux services. Une opportunité rare de finaliser une maison moderne dans un environnement recherché et de qualité. Plans disponibles sur demande. Offre soumise à l'accord des propriétaires. Prix Hors droits d'enregistrement.
Prix de vente 419.000€
Agence de Namur - Erpent 081 31 15 11 Nous contacter

Demande d'infos envoyée avec succès.

Retour

Demande d'infos pour ce bien

Chaussée de Marche 588 - 5101 ERPENT, NAMUR
081 31 15 11 - namur@century21immodemeuse.be
IPI 501.475 - TVA : 831.406.695

Ce site utilise des cookies

Nous utilisons des cookies pour assurer le bon fonctionnement du site. Vous pouvez consulter nos mentions légales et notre politique de confidentialité pour plus d'informations.

Accepter les cookiesParamétrer ou refuser les cookies
Plus d'informations sur l'utilisation de vos données personnelles