Au coeur d'un joli village: belle villa en excellent état d'entretien

555.000€ PEB C
  • icone lit 4 chambre(s)
  • icone douche 1 salle(s) de bain(s)
  • icone équerre 260 m² hab.
  • icone localisation HAVERSIN
Demande d'informations

Caractéristiques du bien

Général

  • Référence 25033
  • Disponibilité A l'acte
  • Catégorie Au coeur d'un joli village: belle villa en excellent état d'entretien
  • Année de construction 1998
  • Meublé Non
  • Revenu cadastral 1095€
  • État du bâtiment Excellent
  • Étage 2/2

Interieur

  • Chambre(s) 4
  • Salle(s) de bain 1
  • WC(s) 2
  • Grenier Oui
  • Chauffage C.C. au mazout
  • Cuisine Entièrement équipée
  • Vitrage Double
  • Avec bureau Non
  • Ascenseur Non

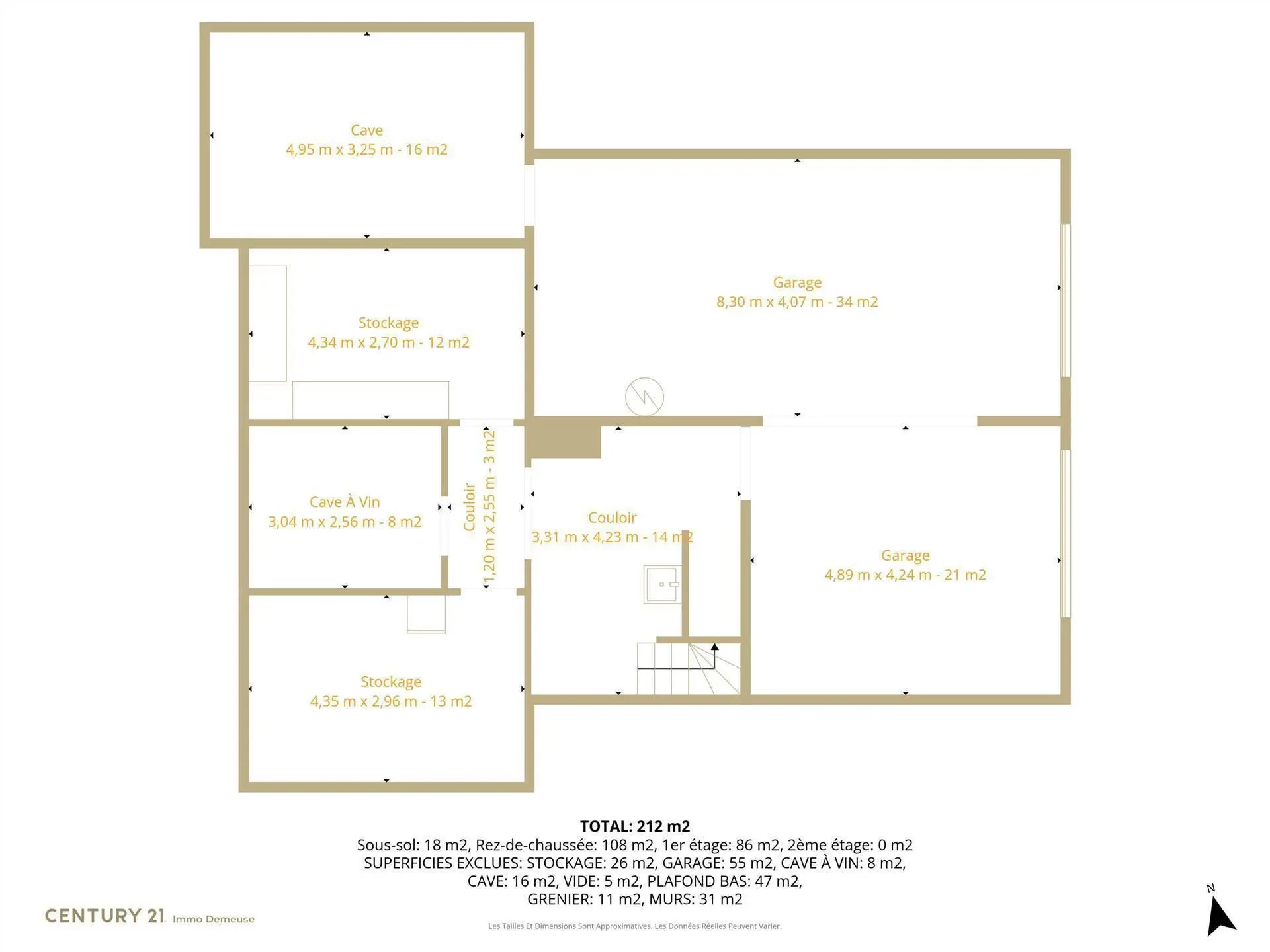
Surfaces

  • Surface brut 107 m²
  • Surface habitable 260 m²
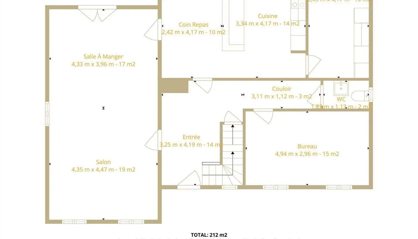
  • Surface du living 37 m²
  • Surface du terrain 1594 m²

Énergie

  • Energie spécifique (kWh/m²/an) 180
  • Label peb C
A
B
C C
D
E
F
G

Autres caractéristiques

  • Terrasse Oui
  • Cave(s) Oui
  • Jardin Oui
  • Garage1

Description

Située dans le village recherché de Haversin, cette magnifique maison construite en 1998 vous séduira par ses volumes généreux, ses matériaux de qualité et sa situation particulièrement calme. Implantée sur un terrain de 15 ares 94 centiares, la propriété offre un cadre de vie paisible et verdoyant. La maison développe de belles surfaces avec des caves et un double garage totalisant 121 m², un rez-de-chaussée de 104 m² ainsi qu’un premier étage de 94 m². Un grenier de 56 m² complète l’ensemble et offre un espace de rangement supplémentaire ou un beau potentiel d’aménagement selon vos besoins. La maison dispose de quatre chambres confortables, idéales pour une famille. La cuisine équipée et la salle de bain ont été rénovées avec goût et proposent des équipements modernes, la salle de bains comprenant à la fois une baignoire et une douche pour plus de confort. Deux WC individuels viennent également compléter l’agencement pratique de l’habitation. À l’extérieur, vous profiterez d’une belle terrasse ainsi que d'un jardin, idéale pour les moments de détente et les repas en plein air. Le double garage constitue également un atout important pour le stationnement et le rangement. Une maison solide, lumineuse et bien entretenue, offrant de beaux volumes et située dans un environnement calme, tout en restant à proximité des commodités. Intéressés par une visite? Contactez-nous au 083/21.21.61 !
Prix de vente 555.000€
Agence de Ciney 083 21 21 61 Nous contacter

Demande d'infos envoyée avec succès.

Retour

Demande d'infos pour ce bien

Rue du Commerce 1 - 5590 CINEY
083 21 21 61 - info@century21immodemeuse.be
IPI 501.475 - TVA : 875.888.224

Ce site utilise des cookies

Nous utilisons des cookies pour assurer le bon fonctionnement du site. Vous pouvez consulter nos mentions légales et notre politique de confidentialité pour plus d'informations.

Accepter les cookiesParamétrer ou refuser les cookies
Plus d'informations sur l'utilisation de vos données personnelles